11 Loftus Place, Dundee, Angus, DD3 9TF

Offers over £190,000

Under Offer
DNE250777_02.jpg
  • 2 bed
  • 1 bath
  • 2 reception
CLOSING DATE FIXED: FRIDAY 17 APRIL 2026 AT 11AM

This spacious detached two-bedroom bungalow is situated in a popular and well established residential area, offering comfortable single level living with bright interiors and generous room sizes throughout. The property benefits from electric heating and double glazing and is brought to the market with all floor coverings, light fittings and blinds included. Any remaining furnishings can also be made available upon request.

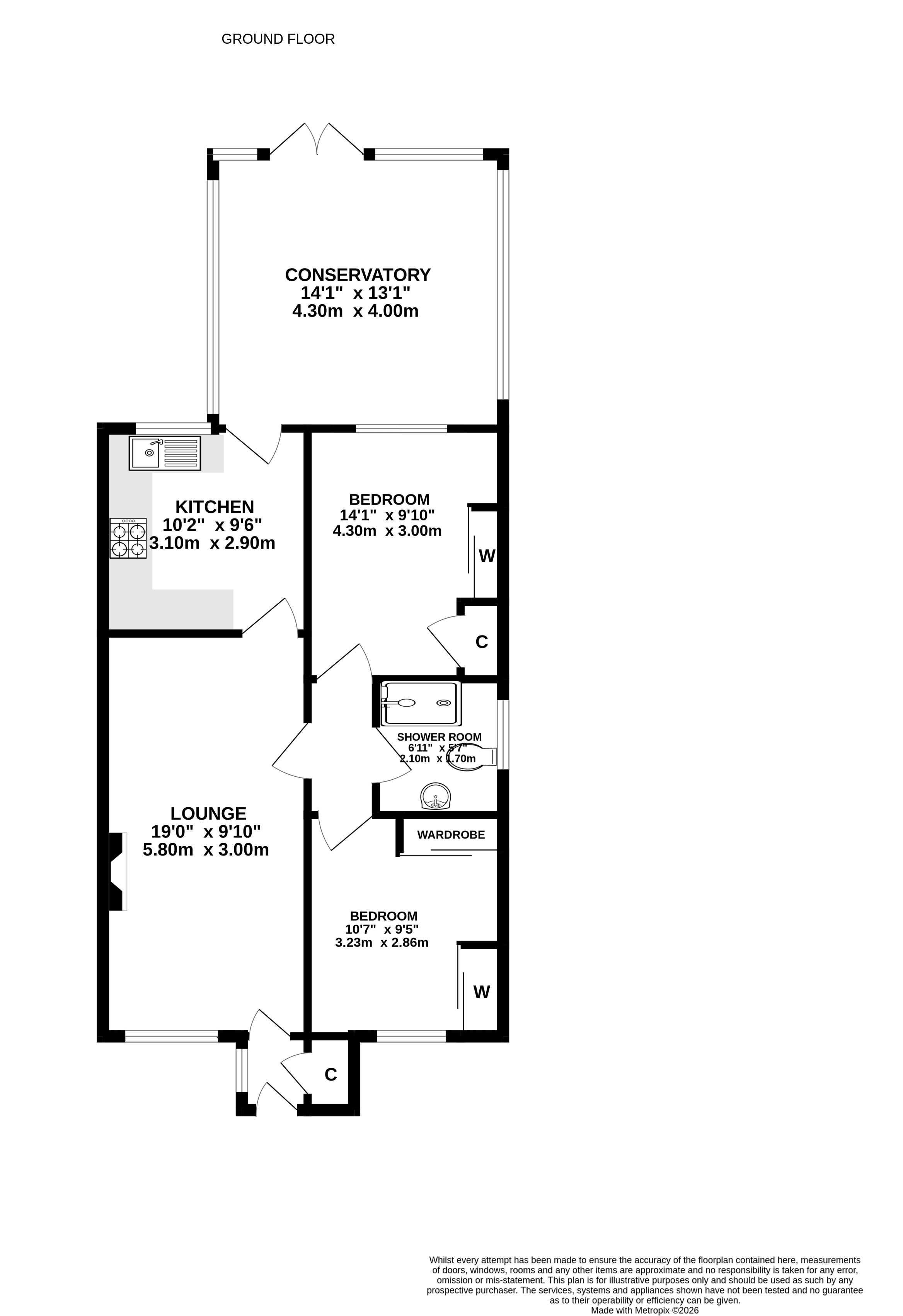
The accommodation begins with a vestibule that provides useful storage and leads into a welcoming hallway. The lounge is bright and spacious, featuring an electric fire and offering an inviting area for relaxation. The well proportioned fitted kitchen sits to the rear of the property and gives direct access to the conservatory. Both double bedrooms are generously sized and each benefit from excellent built in storage. The modern shower room is tastefully finished and includes a chrome towel rail. The conservatory provides a fantastic additional living space, ideal for dining or entertaining, while enjoying an outlook over the rear garden.

Externally, the property features a fully enclosed and gated monobloc driveway alongside a neat lawned garden at the front. The main rear garden is also fully enclosed and is a mix of monobloc and lawn areas, with a greenhouse and shed included in the sale.

EPC Rating - D
Home Report Value - £190,000
Council Tax Band - D

Make a request

CAPTCHA
This question is for testing whether or not you are a human visitor and to prevent automated spam submissions.

Free Valuation

Get a free, no-obligation, market appraisal, valuation and sales strategy from our expert team, using their extensive knowledge of the local market.

Get a free valuation