13 Strathisla Road, Broughty Ferry, Dundee, Angus, DD5 1QA

Offers over £210,000

Under Offer
DNE260104_01.jpg
  • 2 bed
  • 1 bath
  • 2 reception
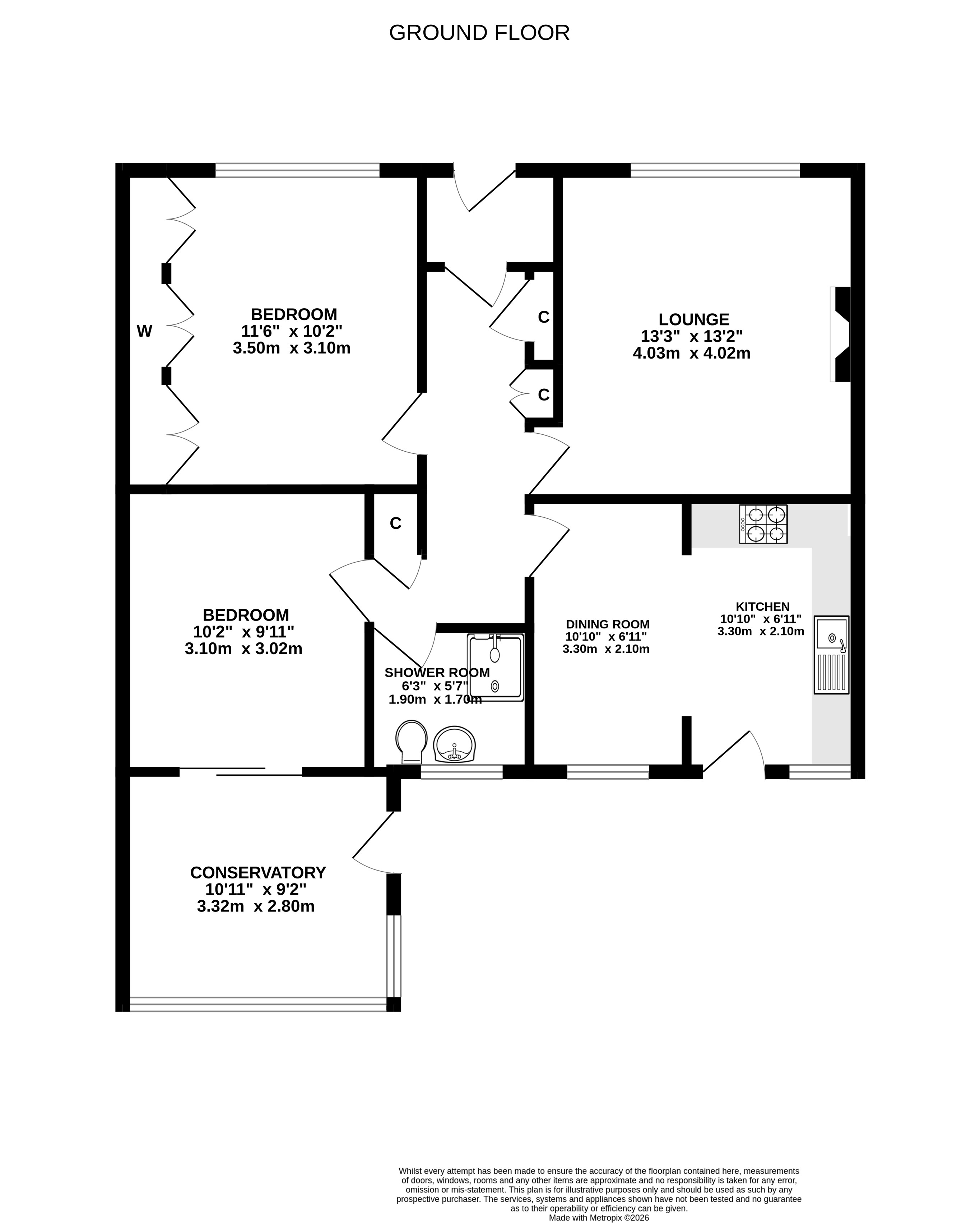
Lindsays are delighted to bring this property to the market. Strathisla Road is ideally located for easy access to local amenities including shops, restaurants and bars, as well as highly regarded primary and secondary schooling.

The home benefits from gas central heating, double glazing throughout and a fully floored attic, providing excellent additional storage. Included in the sale are all floor coverings, light fittings, blinds (where fitted) and the white goods in the kitchen (no warranties are provided).

This bungalow offers great potential and will appeal to a wide range of buyers. Early viewing is highly recommended.

Home Report Valuation £210,000
EPC E
Council Tax D

Make a request

CAPTCHA
This question is for testing whether or not you are a human visitor and to prevent automated spam submissions.

Free Valuation

Get a free, no-obligation, market appraisal, valuation and sales strategy from our expert team, using their extensive knowledge of the local market.

Get a free valuation