16 Spink Street, Arbroath, Angus, DD11 3AS

Offers over £115,000

Sold
DNE250183_02.jpg
  • 3 bed
  • 1 bath
  • 1 reception
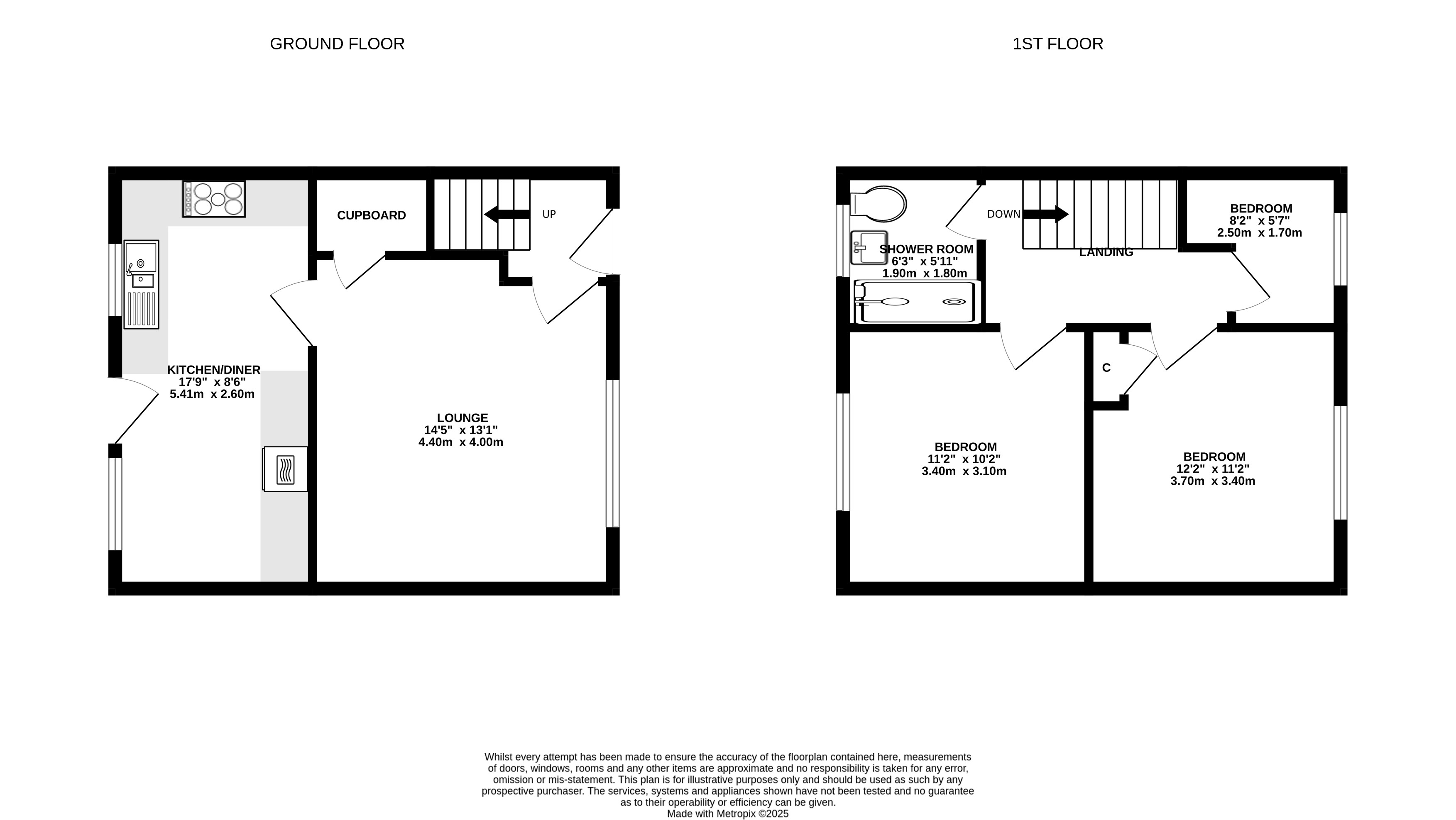
Lindsays are delighted to offer to the market this spacious three bedroom end of terrace home located in a popular area within Arbroath. Spink Street is located within ease of access to a range of local amenities such as schools, shops, services, and recreational facilities. There are a number of superstores on hand while there is excellent transport links located nearby. The A92 offers an excellent commuter links to both Dundee and Aberdeen. The property benefits from gas central heating and double glazing throughout. Included in the sale are all floor coverings, light fittings and blinds where fitted along with integrated kitchen appliances and washing machine (no guarantees are provided).

The accommodation is presented to the market in move in condition and the ground floor comprises: Bright and spacious lounge with useful storage cupboard and a large fitted kitchen with ample counter, cupboard and dining space. Upstairs are two generously sized double bedrooms with one of them benefiting from a built in cupboard, a further single bedroom and a modern shower room with walk in shower.

Externally, to the front of the property is an easy to main chip stone garden. The main garden is to the rear of the property this is a well maintained, fully enclosed area mainly laid in lawn with a patio seating area and shed that is included in the sale. Parking spaces are available outside the front of the property.


HR Value- £115,000
EPC- C
Council Tax Band- B

Make a request

CAPTCHA
This question is for testing whether or not you are a human visitor and to prevent automated spam submissions.

Free Valuation

Get a free, no-obligation, market appraisal, valuation and sales strategy from our expert team, using their extensive knowledge of the local market.

Get a free valuation