3 Fairhill Crescent, Perth, Perth and Kinross, PH1 1RR

Offers over £220,000

Under Offer
PER250174_01.jpg
  • 3 bed
  • 1 bath
  • 1 reception
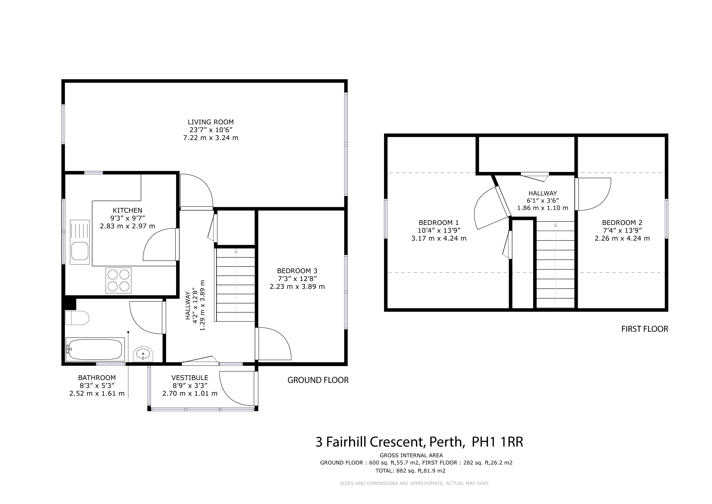
We are delighted to offer for sale this 3 bedroom detached villa occupying a fantastic position within the popular Oakbank area of Perth. The property does require a full scheme of upgrading but it occupies a corner plot with ample scope for extension subject to planning consents.

Access to the property is via a porch at the side of the property with accommodation on the ground floor comprising a vestibule leading into a hallway with understairs storage; a good sized dual aspect lounge/dining room, kitchen, bedroom and family bathroom with coloured suite. On the upper floor there are 2 further bedrooms and a large storage cupboard with potential to add a shower room/WC. Externally a long, gravelled driveway leads to a double garage with inspection pit. The generous garden grounds are laid to lawn and present an excellent opportunity to extend.

3 Fairhill Crescent is a most welcome addition to the market and its potential and location make viewing essential to appreciate all it has to offer.

Situated in the desirable Oakbank area of the city of Perth, the property is well placed for schools and local amenities. The property is also on the bus route to and from the city centre. Perth also offers a wide range of commuting services including bus, road and rail links.

Make a request

CAPTCHA
This question is for testing whether or not you are a human visitor and to prevent automated spam submissions.

Free Valuation

Get a free, no-obligation, market appraisal, valuation and sales strategy from our expert team, using their extensive knowledge of the local market.

Get a free valuation