34 Roman Road, Westmuir, Kirriemuir, Angus, DD8 5LT

Offers over £215,000

Sold
DNE240702_01.jpg
  • 3 bed
  • 1 bath
  • 2 reception
Lindsays are delighted to offer to the market this spacious three bedroom detached bungalow with a lovely outlook set within a quiet street. Roman Road is located in the popular village Westmuir which has a local shop, post office and access to public transport. Kirriemuir is only a short distance away where you will find further local amenities including two primary schools & Webster’s High School. The property benefits from double glazing and gas central heating throughout. Included in the sale are all floor coverings, light fittings and blinds where fitted along with all white goods (no guarantees provided).

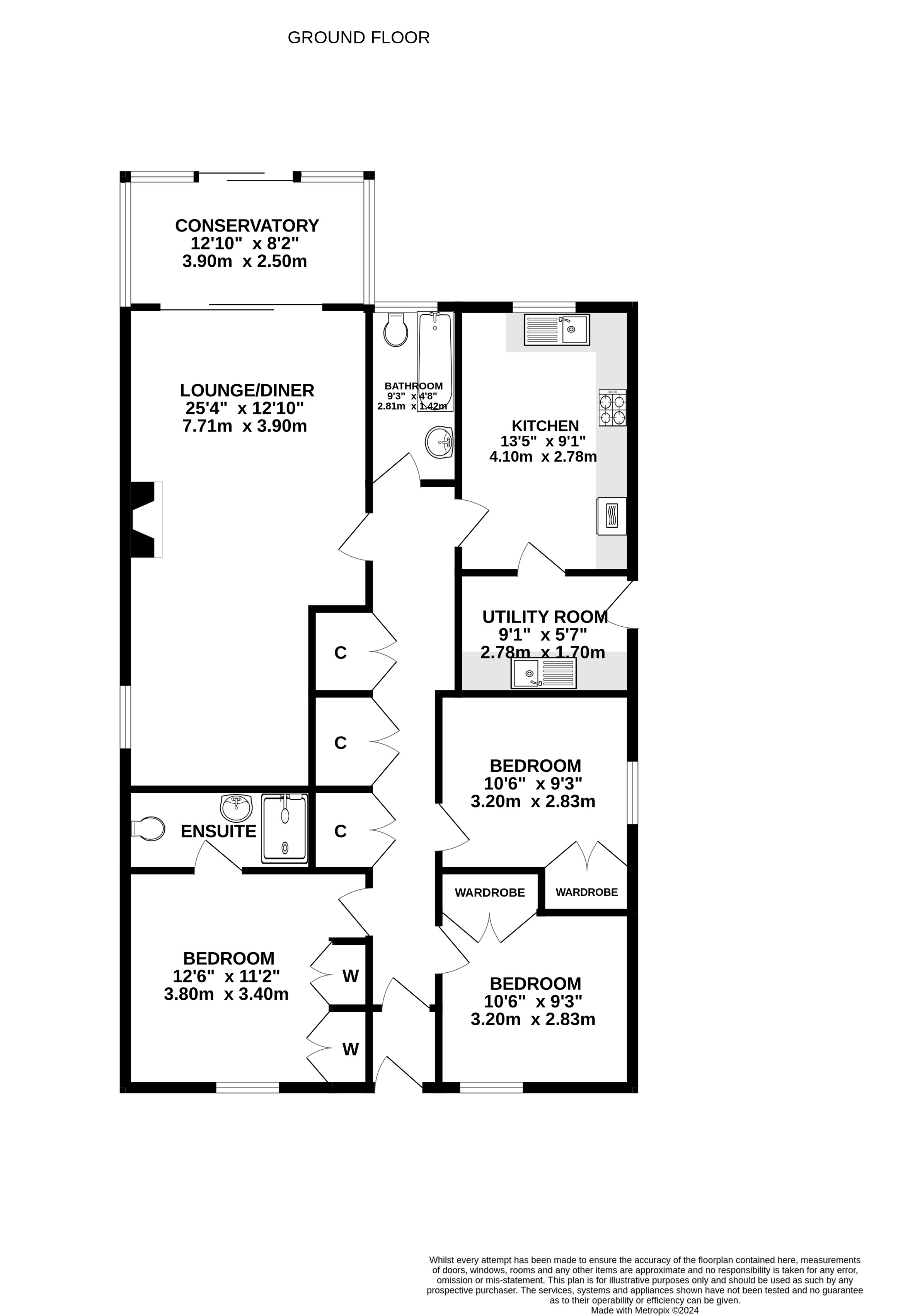
The property is all on one level and comprises: Vestibule, hallway with excellent storage, fitted kitchen boasting views of the countryside and ample cupboard & counter space along with breakfast bar for dining. Useful utility room with door providing access to the side of the property and a three-piece bathroom. Bright and spacious open plan lounge and dining room leading to the conservatory that takes full advantage of the lovely views over the garden and countryside. The principle bedroom has double built in wardrobes along with a shower room ensuite and there are two further double bedrooms both with built in storage.

HR Valie- £215,000
EPC- C
Council Tax Band- E

Make a request

CAPTCHA
This question is for testing whether or not you are a human visitor and to prevent automated spam submissions.

Free Valuation

Get a free, no-obligation, market appraisal, valuation and sales strategy from our expert team, using their extensive knowledge of the local market.

Get a free valuation