42 Unicorn Court West Victoria Dock Road, Dundee, Angus, DD1 3BH

Offers over £175,000

new
DNE260143_06.jpg
  • 2 bed
  • 1 bath
  • 1 reception
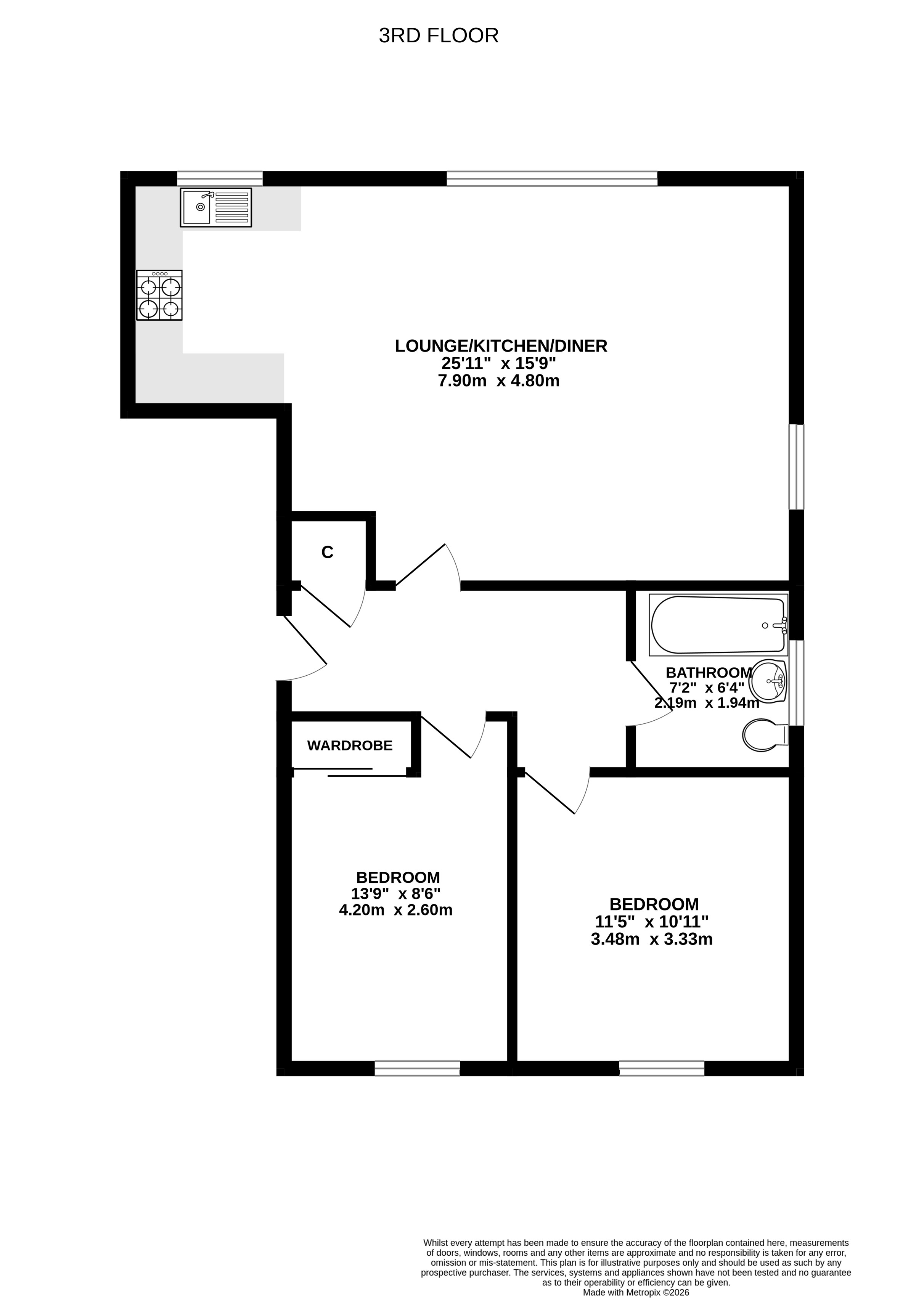
Lindsays are delighted to offer to the market this third-floor apartment located in the sought after City Quay area of Dundee and enjoys views to the west overlooking the city centre. City Quay is well placed for access to all the amenities of Dundee’s city centre, universities, colleges and within easy reach of Ninewells Hospital and the Technology Park.

The accommodation comprises an entrance hall with built-in storage cupboard, bright and spacious open plan lounge/dining/kitchen with windows to the north and west with views across the city. The kitchen area is fitted with a range of units with integrated hob, oven, extractor hood fridge, freezer, washing machine and dishwasher. Both bedrooms are doubles, with bedroom 2 having fitted wardrobes, and the bathroom with electric shower over the bath. The property comes with a designated parking space. The property is factored, for which a fee applies and is approximately £114 per month covering the upkeep of communal areas, passenger lift and buildings insurance. Practical benefits include double glazing, gas central heating, security entry and lift. Included in the sale are all fitted blinds and floor coverings along with the integrated kitchen appliances. Household items and furniture can be available to the successful purchaser.

Early viewing is highly recommended to fully appreciate the property on offer.

EPC Rating - C
Home Report Value - £175,000
Council Tax Band - D

Make a request

CAPTCHA
This question is for testing whether or not you are a human visitor and to prevent automated spam submissions.

Free Valuation

Get a free, no-obligation, market appraisal, valuation and sales strategy from our expert team, using their extensive knowledge of the local market.

Get a free valuation