76 Hawick Drive, Dundee, Angus, DD4 0TA

Offers over £250,000

  • 3 bed
  • 2 bath
  • 2 reception
Located in the popular Ballumbie Area on the north-eastern edge of Dundee this attractive family home with versatile accommodation will appeal to a wide variety of buyers. Occupying a generous corner plot the property has been lovingly maintained over the years, and whilst may benefit from some updating will provide an excellent home for the young family. Practical benefits include double glazing and gas central heating. Included in the sale are all fitted floorcoverings, blinds where fitted along with the integrated kitchen appliances as detailed.

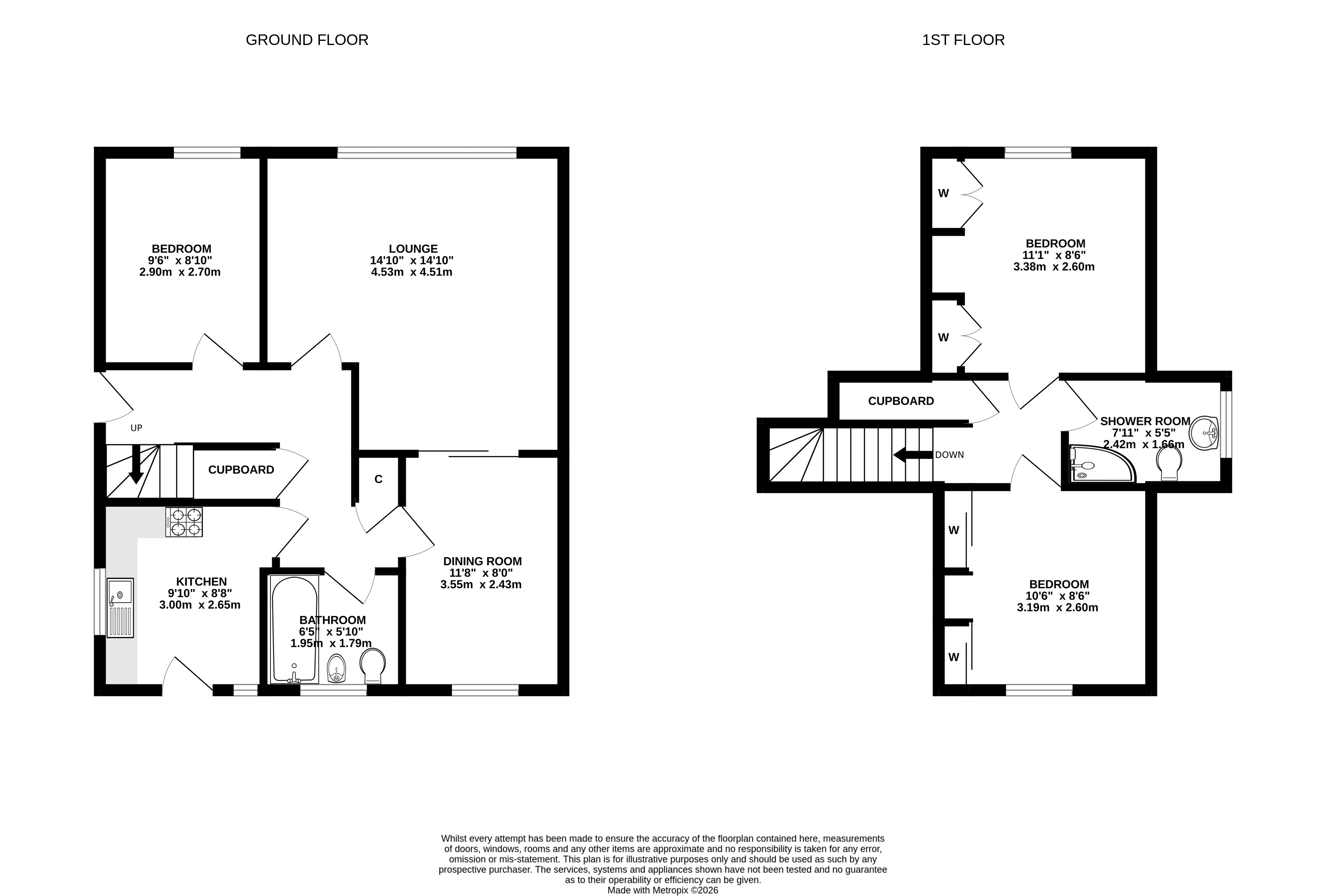
The accommodation on the ground floor comprises an entrance hall, generous lounge with window to the front and double doors through to the dining room, kitchen a range of units, integrated hob, oven and extractor hood, space for fridge-freezer and plumbing for a washing machine and dishwasher. One of the bedrooms is on the ground floor along with the family bathroom with instant shower over the bath and a contemporary bathroom with shower over the bath. Moving to the upper floor there are two double bedrooms, one with a range of fitted furniture and bath with access to eaves storage, and a shower room. Outside there are gardens to the front, side and rear, all well maintained with lawn and borders, along with a driveway providing off-street parking leading to the single garage. To the rear there is a paved drying area and composite deck.

HR Value- £250,000
EPC- C
Council Tax Band-D

Make a request

CAPTCHA
This question is for testing whether or not you are a human visitor and to prevent automated spam submissions.

Free Valuation

Get a free, no-obligation, market appraisal, valuation and sales strategy from our expert team, using their extensive knowledge of the local market.

Get a free valuation