Flat 2B 516 Perth Road, Dundee, Angus, DD2 1LW

Offers over £390,000

Under Offer
DNE230562_14.jpg
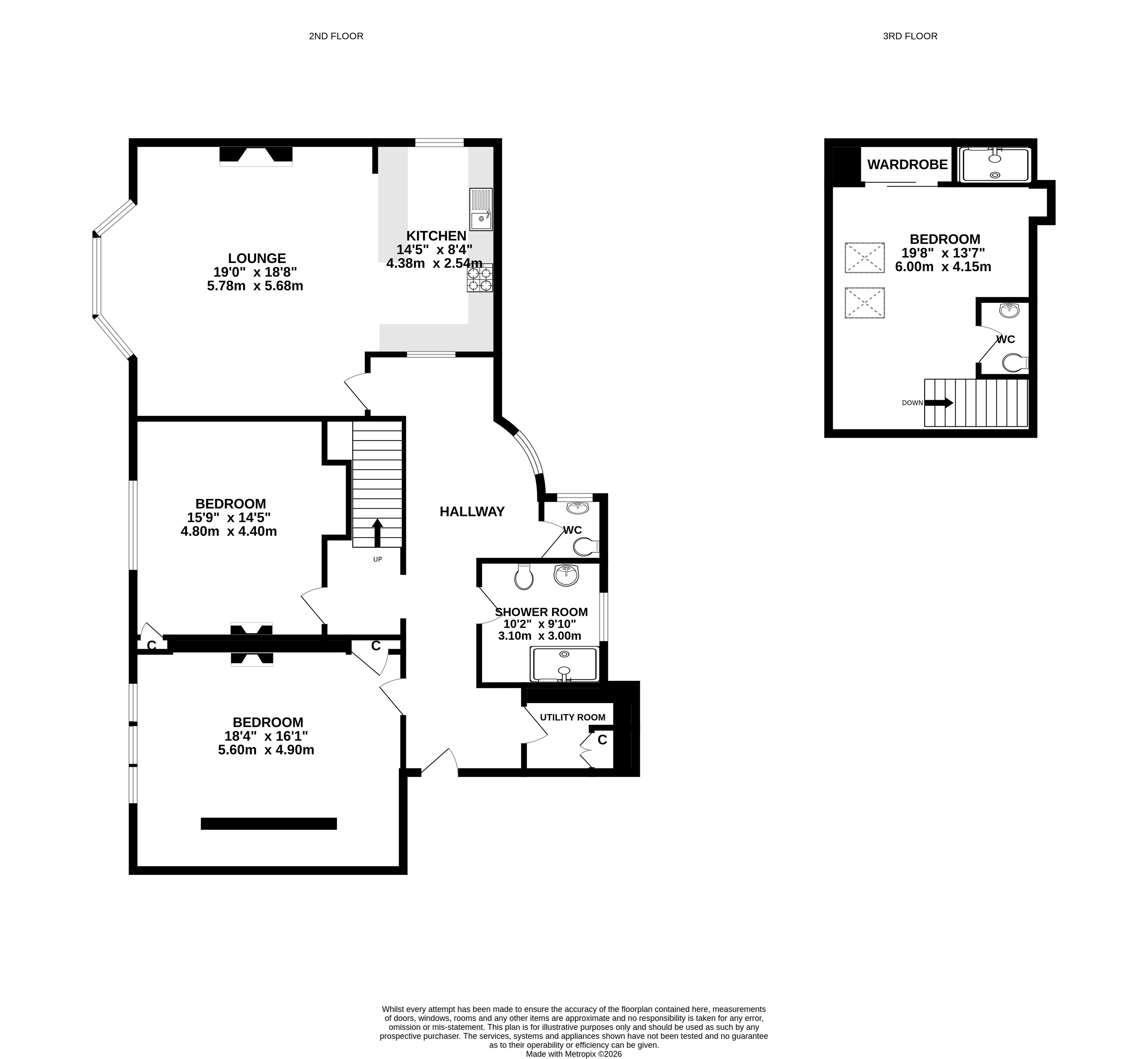
  • 3 bed
  • 1 bath
  • 1 reception
Set on the Perth Road, in the popular west end of Dundee, apartment 2B enjoys an elevated position with impressive views over the Botanic Gardens and the River Tay. The property is well-located for Ninewells Hospital, the Technology Park, the universities and the airport. There is ease of access both to the city centre and to the A90 linking to Perth and Edinburgh, and north to Angus and Aberdeen.

This outstanding apartment combines timeless character with modern comfort; all set against the stunning backdrop of the River Tay and can only be fully appreciated by viewing.

EPC Rating - C
Home Report Value - £390,000
Council Tax Band - E

Make a request

CAPTCHA
This question is for testing whether or not you are a human visitor and to prevent automated spam submissions.

Free Valuation

Get a free, no-obligation, market appraisal, valuation and sales strategy from our expert team, using their extensive knowledge of the local market.

Get a free valuation