Flat 5, St. Helens 474 Perth Road, Dundee, Angus, DD2 1LL

Offers over £360,000

  • 2 bed
  • 2 bath
  • 2 reception
Lindsays are delighted to offer to the market this truly impressive B listed Baronial style divided villa arranged over two floors.
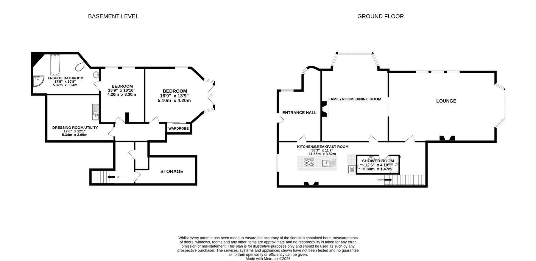
The accommodation on the entrance level includes a welcoming vestibule with turret feature and leads to the contemporary kitchen which is fitted with a range of integrated appliances. There is a magnificent lounge, generously proportioned and flooded with natural light from a beautiful bay window, further complemented by the feature fireplace and an exquisite statement mirror above. Sliding doors from the lounge lead seamlessly into the versatile library/dining room, perfect for entertaining or quiet relaxation. A well appointed shower room completes this level.
On the lower floor, there are two bedrooms one of which has an en-suite bathroom. A second double bedroom has built in wardrobes and enjoys French doors opening directly onto the private garden. Additional accommodation includes a dressing room/utility space and a large store, ensuring practicality matches the home's elegant aesthetic. A previous owner had plans drawn up to incorporate the dressing room and storage into the existing bedrooms to offer another ensuite and additional bedroom space.
Externally, there is a shared driveway accessed from Perth Road leading to four designated parking spaces. There is also a lovely private garden to the side and rear.

Home Report Value - £360,000
Energy Rating - C
Council Tax Band - F

Make a request

CAPTCHA
This question is for testing whether or not you are a human visitor and to prevent automated spam submissions.

Free Valuation

Get a free, no-obligation, market appraisal, valuation and sales strategy from our expert team, using their extensive knowledge of the local market.

Get a free valuation