Kirklands High Street, Aberdour, Burntisland, Fife, KY3 0SY

Offers over £750,000

  • 5 bed
  • 2 bath
  • 1 reception
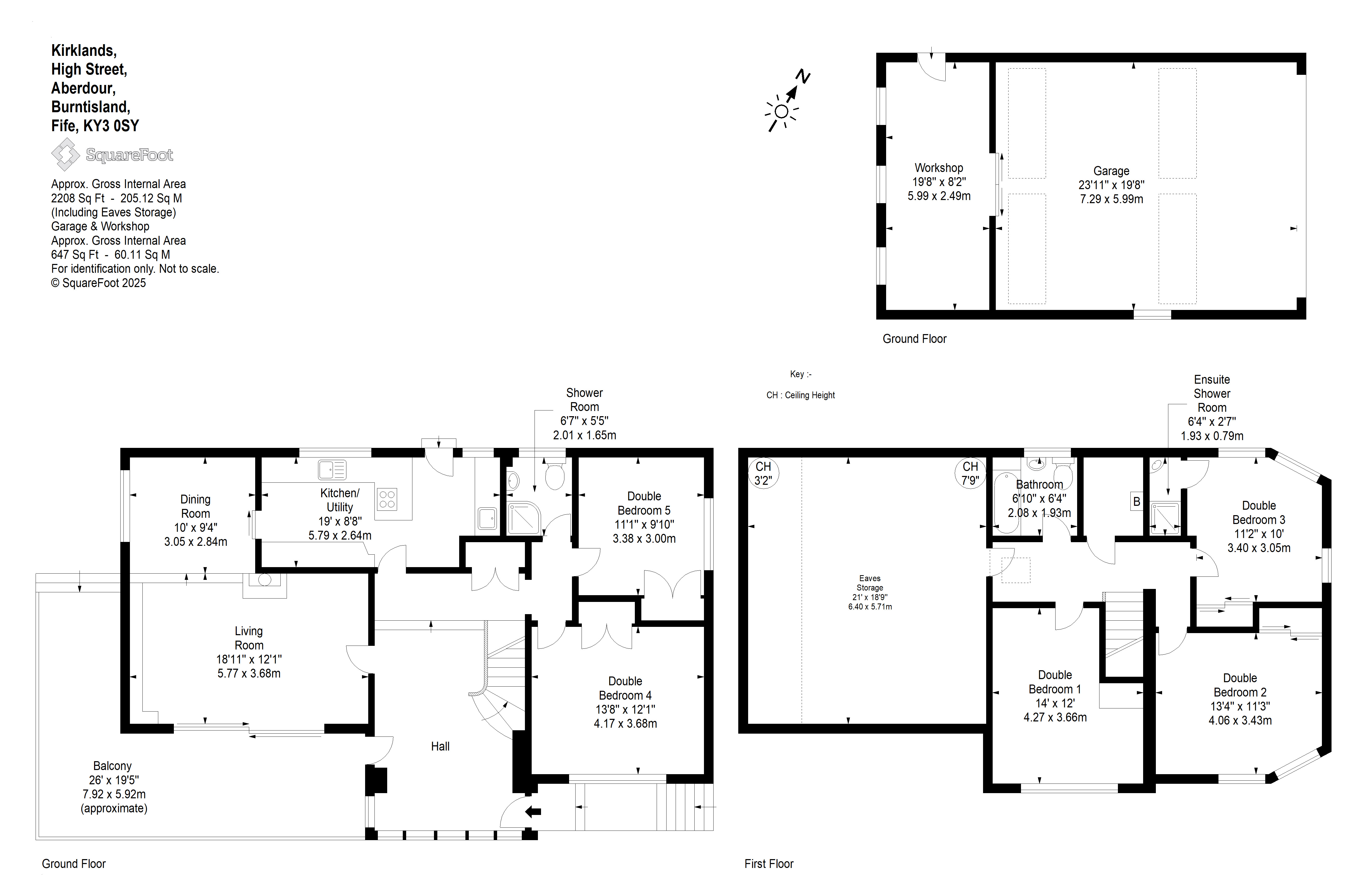
Peacefully positioned on a generous plot of over half an acre and with outstanding views, ‘Kirklands’ is a rarely available five-bedroom detached home offering spacious, flexible accommodation and exceptional potential. Set within mature garden grounds that include expansive lawns, woodland, and an orchard, the property enjoys a tranquil setting in a highly sought-after location. Extending to over 1,800 sq ft, the interior presents an excellent opportunity for modernisation and reconfiguration to create a truly individual family home. The accommodation briefly comprises - a welcoming entrance hallway with bespoke staircase, a light-filled sitting room with raised dining area and full-height glazing opening on to a decked balcony, a well-proportioned kitchen/breakfast room with access to the rear garden, five double bedrooms, a family bathroom, and an additional shower room. Further features include gas central heating, double glazing, a private driveway with ample off-street parking, and a large detached garage with a workshop area. Please note: A plot of land to the east of the main house plot is not included in the sale.

Viewing by appointment contact Lindsays 0131 229 4040

Council Tax Band G
EPC Rate D

Make a request

CAPTCHA
This question is for testing whether or not you are a human visitor and to prevent automated spam submissions.

Free Valuation

Get a free, no-obligation, market appraisal, valuation and sales strategy from our expert team, using their extensive knowledge of the local market.

Get a free valuation