Summerside Friars, Jedburgh, Scottish Borders, TD8 6BN

Offers over £475,000

  • 4 bed
  • 2 bath
  • 3 reception
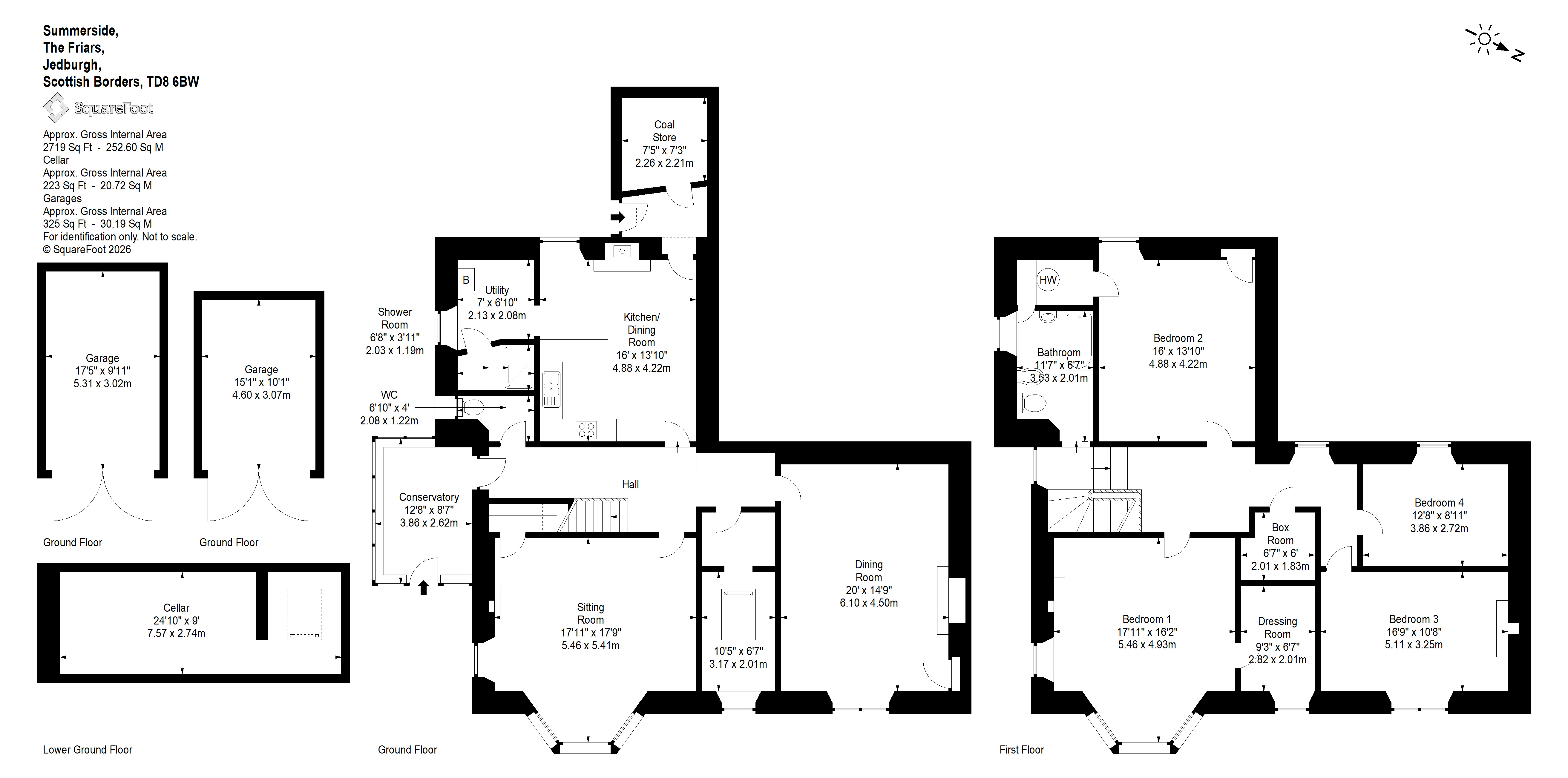
Summerside is a handsome stone built detached house situated in an elevated position located within a highly regarded street in the historic town of Jedburgh. This superb property offers a substantial family home with flexible accommodation over two levels. The elegant and generously proportioned accommodation would now benefit from some modernisation, offering the opportunity for a new owner to create a stylish home in a picturesque location. The bay windowed sitting room enjoys a beautiful outlook and has a feature fireplace and an additional window to the side. The dining kitchen has a stove, clothes pulley, and a utility room with shower room off. There is a twin windowed dining room which has a feature fireplace, cornicing and ceiling rose. Also on the lower level is the conservatory, larder/study, and a downstairs wc. On the upper level is a bay windowed principal double bedroom enjoying stunning views with feature fireplace and dressing room off. There are three further double bedrooms, a boxroom, and family bathroom with shower over the bath. The property is set within immaculately maintained grounds and boasts two garages, garden shed and a coal shed. Please note that no warranty will be given for the systems and appliances – they are sold as seen.

Viewing by appointment contact Lindsays 0131 229 4040

EPC E
Council Tax Band G

Make a request

CAPTCHA
This question is for testing whether or not you are a human visitor and to prevent automated spam submissions.

Free Valuation

Get a free, no-obligation, market appraisal, valuation and sales strategy from our expert team, using their extensive knowledge of the local market.

Get a free valuation