11 Clement Park Terrace, Dundee, Angus, DD2 3NL

Offers over £175,000

Under Offer
DNE250805_02.jpg
  • 4 bed
  • 1 bath
  • 1 reception
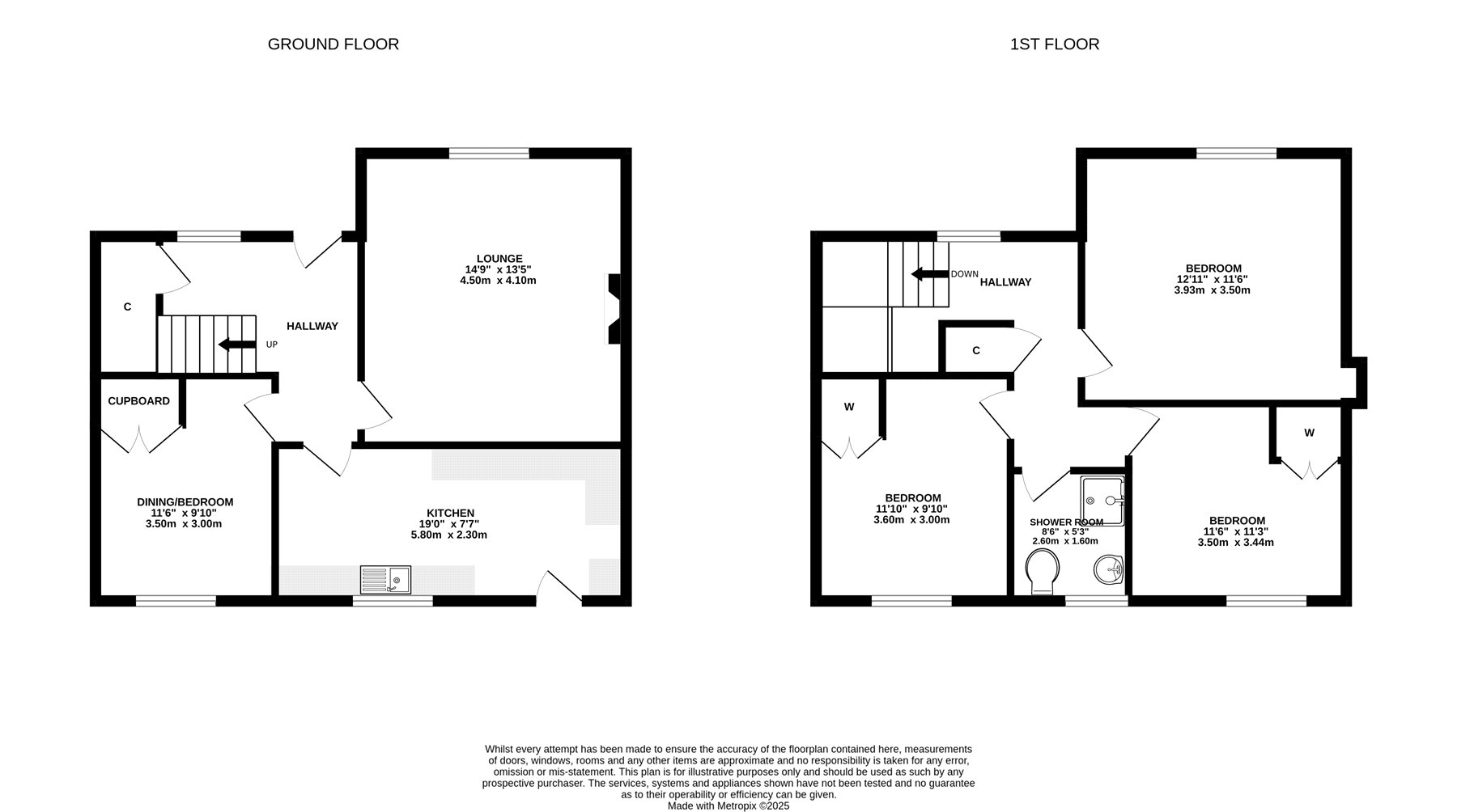
This is an excellent opportunity to purchase this spacious four bedroom semi detached villa in a popular residential area. Clement Park Terrace is ideally situated for ease of access to a number of local amenities including shops, schools and a regular commuter bus route.

The accommodation comprises on the ground floor: hallway, bright and spacious lounge, dining room/bedroom 4 and fitted kitchen. Upstairs there are three good sized double bedrooms and shower room. Benefits include double glazing, electric heating and partially floored attic space with Ramsay style ladder.

Externally there are gardens to the front, side and rear. They are laid with a combination of lawn, paving and mature planting. Both the shed and storage unit will be included in the sale.

Early viewing is highly recommended to fully appreciate the property on offer.

Home Report Value - £175,000
Energy Rating - E
Council Tax Band - B

Make a request

CAPTCHA
This question is for testing whether or not you are a human visitor and to prevent automated spam submissions.

Free Valuation

Get a free, no-obligation, market appraisal, valuation and sales strategy from our expert team, using their extensive knowledge of the local market.

Get a free valuation