22 Broomwell Gardens, Monikie, Broughty Ferry, Dundee, DD5 3QP

Offers over £280,000

Under Offer
DNE250084_01.jpg
  • 4 bed
  • 2 bath
  • 2 reception
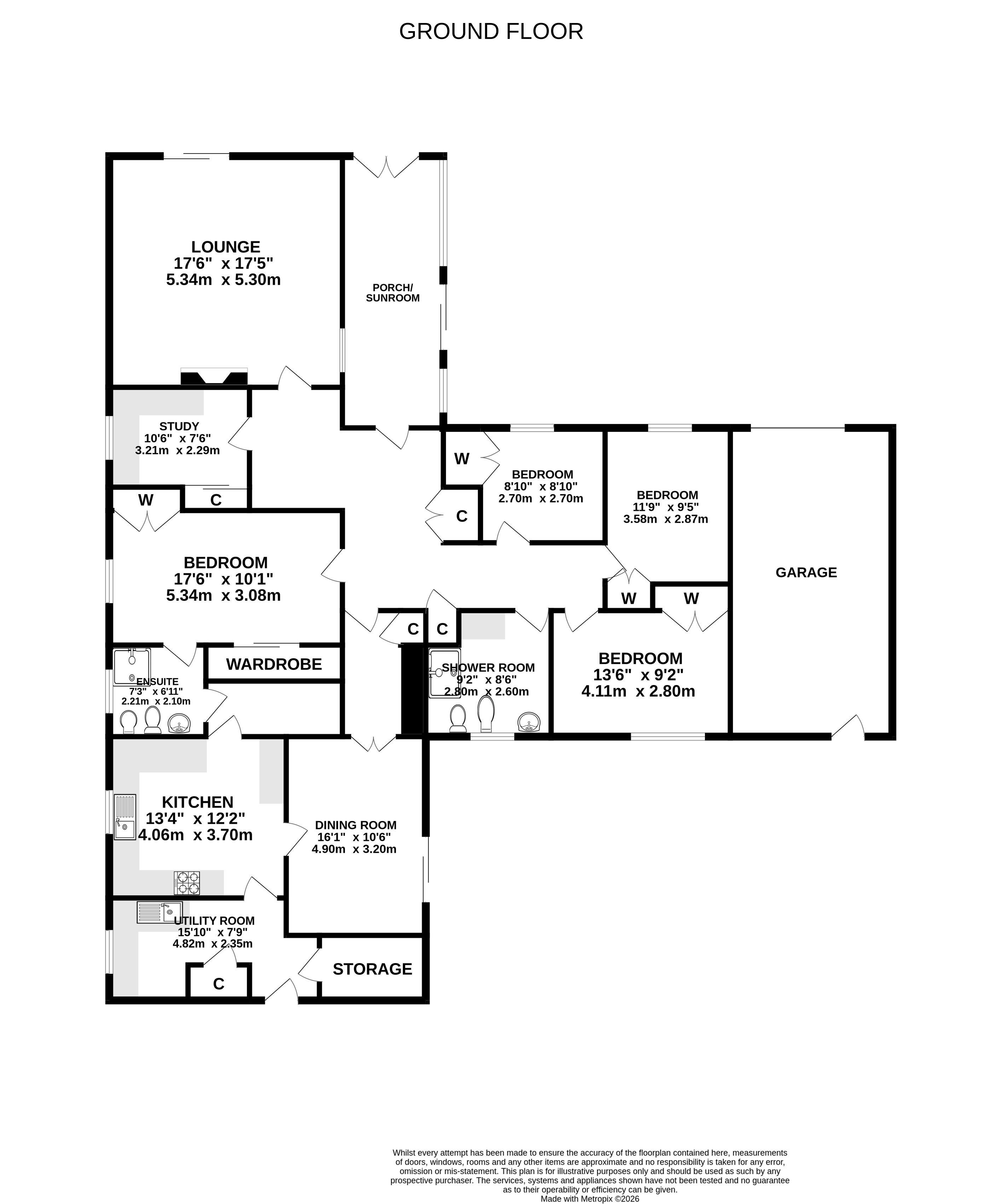
This is an excellent opportunity to purchase this extended four bedroom detached bungalow in a popular village location. The property has been lovingly extended and offers the buyer a substantial family home with versatile accommodation which can be adapted to suit the needs of the new owner.

The accommodation comprises: porch/sun room, hallway, bright and spacious lounge with sliding patio doors leading to the garden. There is a separate dining room which leads into the kitchen which then leads to the utility room and a large store. The principal bedroom has two built in wardrobes and a jack and jill ensuite shower room. There are three further bedrooms all with built in wardrobes, and a study with a fitted furniture, which could be utilised as a further bedroom if required. The four piece shower room completes the property. Benefits include double-glazing, oil-fired heating (excluding porch) and partially floored attic space.

Externally the property sits within an extensive plot with wrap around gardens which are laid with a combination of lawn, patio areas and mature plantings. A monoblock driveway offers off street parking for multiple vehicles and leads to the integral garage. The summer house, greenhouse and numerous sheds/storage will be included in the sale.

Early viewing is highly recommended to fully appreciate the potential of the property on offer.
HOME REPORT £280,000
EPC BAND D
COUNCIL TAX BAND F

Make a request

CAPTCHA
This question is for testing whether or not you are a human visitor and to prevent automated spam submissions.

Free Valuation

Get a free, no-obligation, market appraisal, valuation and sales strategy from our expert team, using their extensive knowledge of the local market.

Get a free valuation