42 Harbour Road, Tayport, Fife, DD6 9EX

Offers over £250,000

Under Offer
DNE250842_08.jpg
  • 2 bed
  • 1 bath
  • 2 reception
A rare opportunity to acquire a beautifully positioned detached bungalow enjoying a truly enviable waterfront setting in the ever-popular town of Tayport. Boasting uninterrupted views over the River Tay and beyond, this charming home offers bright and spacious accommodation ideally suited to a wide range of buyers.
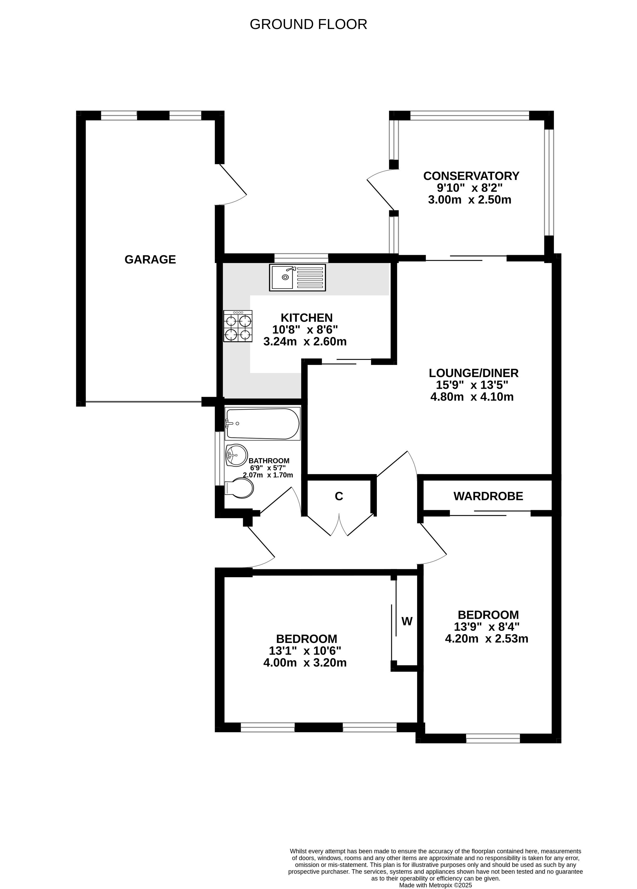
The property is entered via a welcoming hallway which benefits from useful built-in storage. The fitted kitchen provides ample counter and cupboard space and enjoys scenic open views across the River Tay, making it a pleasant and practical space for everyday living. The lounge and dining room is a bright and generously proportioned area. From here, patio doors lead directly into the conservatory, which is a true highlight of the home. Designed to take full advantage of the property’s exceptional position, the conservatory offers stunning waterfront views throughout the year. There are two very generously sized double bedrooms, both of which benefit from built-in storage, and a bright fully tiled bathroom.
Externally, the front of the property is laid in chipstones and provides off-street parking for multiple vehicles, with access to a single garage. The main garden is located to the rear and is fully enclosed and designed for ease of maintenance, again laid predominantly in chipstones. A patio seating area, mature shrubs and breathtaking views over the water create an ideal outdoor space.

Home Report Value - £250,000
Energy Rating - C
Council Tax Band - D

Make a request

CAPTCHA
This question is for testing whether or not you are a human visitor and to prevent automated spam submissions.

Free Valuation

Get a free, no-obligation, market appraisal, valuation and sales strategy from our expert team, using their extensive knowledge of the local market.

Get a free valuation