44 Dawson Road, Broughty Ferry, Dundee, Angus, DD5 1PY

Offers over £300,000

  • 3 bed
  • 1 bath
  • 2 reception
This is an excellent opportunity to purchase this spacious three bedroom villa in a much sought after location.

Dawson Road is ideally situated for ease of access to a number of amenities including shops, schools and is just a short distance from a regular commuter bus service.

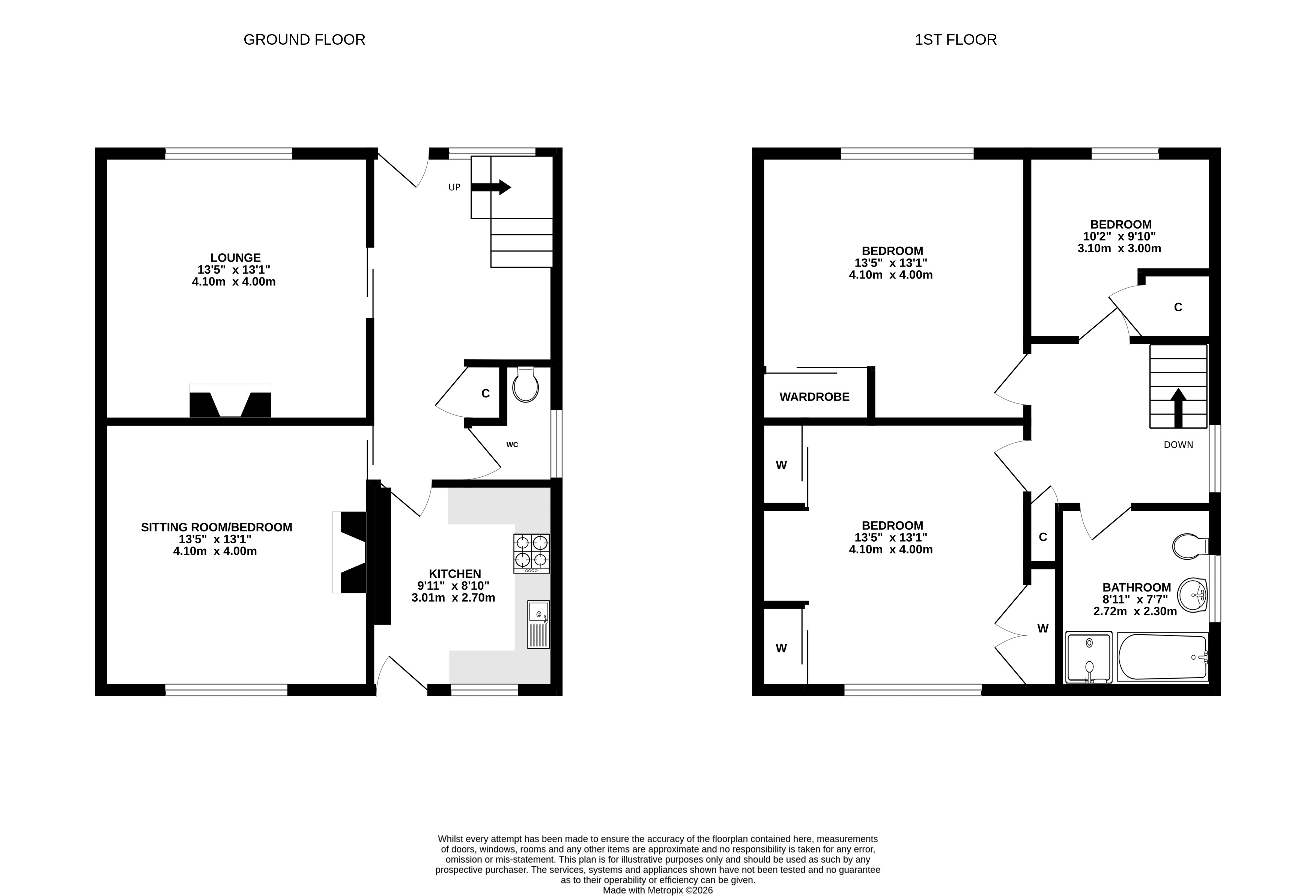
The accommodation comprises: reception hallway with ample storage, lounge, sitting room/dining room, fitted kitchen and WC. Upstairs there are three good sized double bedrooms and a large family bathroom with separate shower cubicle. Benefits include double glazing, gas central heating and partially floored attic space.

Externally there is a well maintained garden to the front and a drive leading to the single garage. The rear garden is fully enclosed and is laid mainly in lawn with a patio area and a selection of mature plantings.

This property will appeal to a number of viewers and early viewing is highly recommended.

Home Report Valuation £300,000
EPC D
Council Tax E

Make a request

CAPTCHA
This question is for testing whether or not you are a human visitor and to prevent automated spam submissions.

Free Valuation

Get a free, no-obligation, market appraisal, valuation and sales strategy from our expert team, using their extensive knowledge of the local market.

Get a free valuation