5 Dunavon Gardens, Dundee, Angus, DD3 9RA

Offers over £155,000

Under Offer
DNE250550_02.jpg
  • 3 bed
  • 1 bath
  • 1 reception
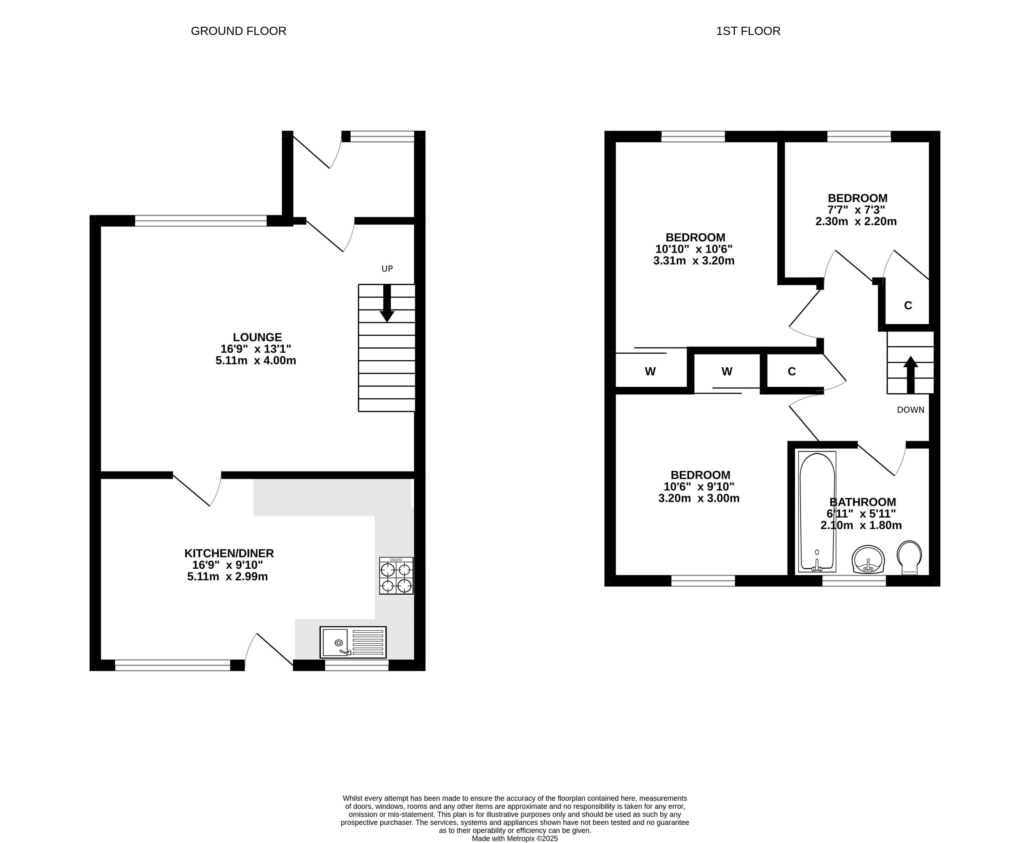
This is an excellent opportunity to purchase this beautifully presented three bedroom end of terrace villa in a popular residential area. Dunavon Gardens are ideally situated for ease of access to a number of local amenities including shops, schools and a regular commuter bus route.

The property is presented to the market in move in condition and comprises: porch, bright and spacious lounge and modern dining kitchen. Up stairs there are three bedroom all with built in storage and family bathroom with electric shower over the bath. Benefits include double glazing, gas central heating and attic space.

Externally there the gardens wrap around the property and are a combination of lawn and paving areas. There is also an area to the side which offers off street parking.

This property will appear to a number of buyers and early viewing is highly recommended.

EPC Rating - C
Home Report Value - £155,000
Council Tax Band - C

Make a request

CAPTCHA
This question is for testing whether or not you are a human visitor and to prevent automated spam submissions.

Free Valuation

Get a free, no-obligation, market appraisal, valuation and sales strategy from our expert team, using their extensive knowledge of the local market.

Get a free valuation