5 Tayview Road, Liff, Dundee, Angus, DD2 5PE

Offers over £280,000

Under Offer
DNE250669_02.jpg
  • 3 bed
  • 1 bath
  • 2 reception
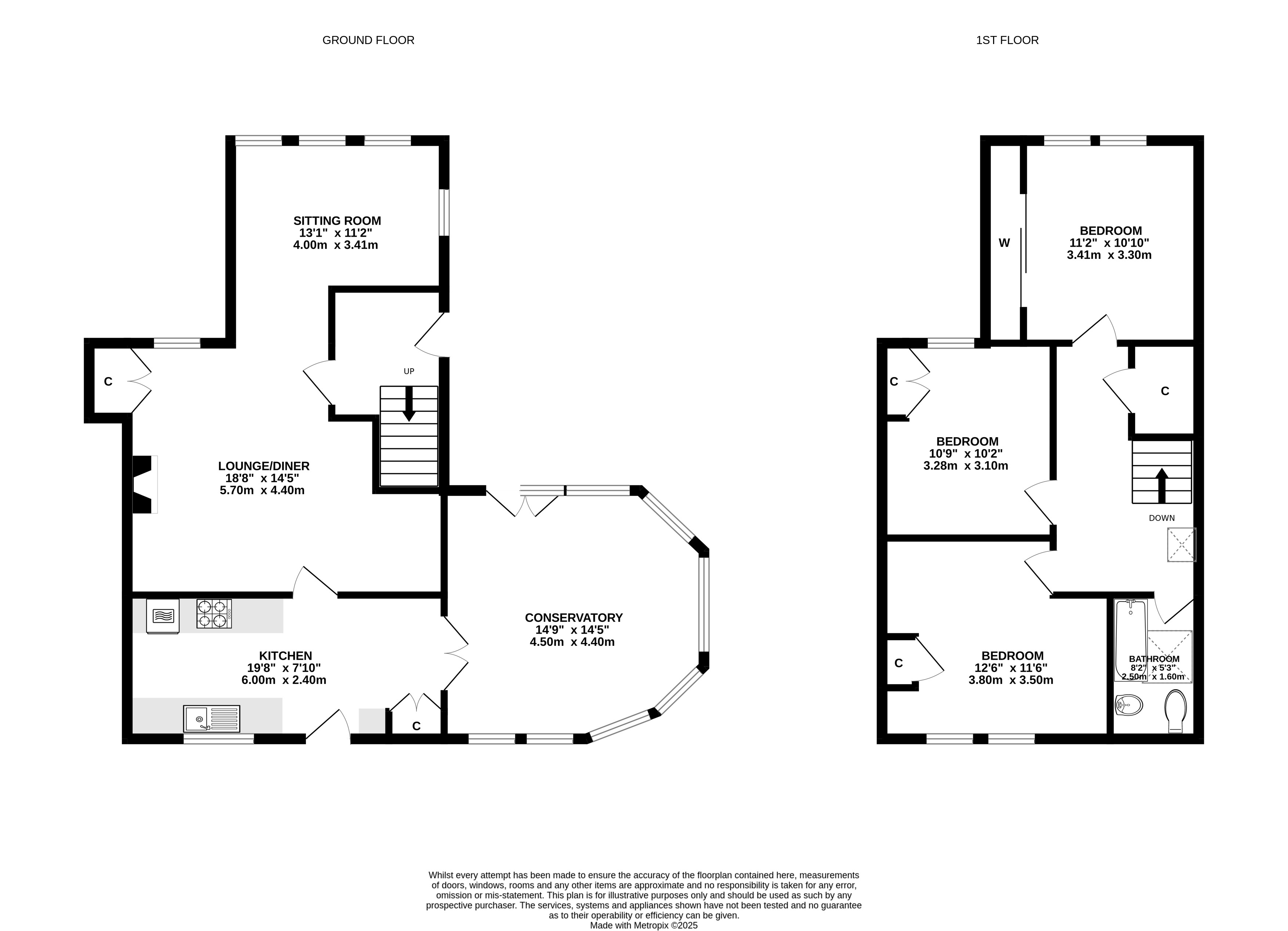
Lindsays are delighted to offer to the market this spacious three bedroom semi detached villa in a much sought after village location.

The property offers versatile accommodation spread over two levels and comprises: hallway and lounge/dining room which leads to the sitting room. There is a large conservatory and fitted kitchen. Upstairs there are three good sized double bedrooms and family bathroom with shower over the bath. Benefits include double glazing, gas central heating and attic space.

Externally there is a lovely wrap around garden which is a combination of lawn, patio area and a number of mature plantings and shrubs. There is off street parking for multiple vehicles. The two timber sheds will be included in the sale.

This property will appeal to a number of buyers and early viewing is highly recommended.


HOME REPORT £280,000
EPC BAND C
COUNCIL TAX BAND D

Make a request

CAPTCHA
This question is for testing whether or not you are a human visitor and to prevent automated spam submissions.

Free Valuation

Get a free, no-obligation, market appraisal, valuation and sales strategy from our expert team, using their extensive knowledge of the local market.

Get a free valuation