57 Mains Loan, Dundee, Angus, DD4 7AJ

Offers over £310,000

Under Offer
DNE250734_03.jpg
  • 4 bed
  • 2 bath
  • 3 reception
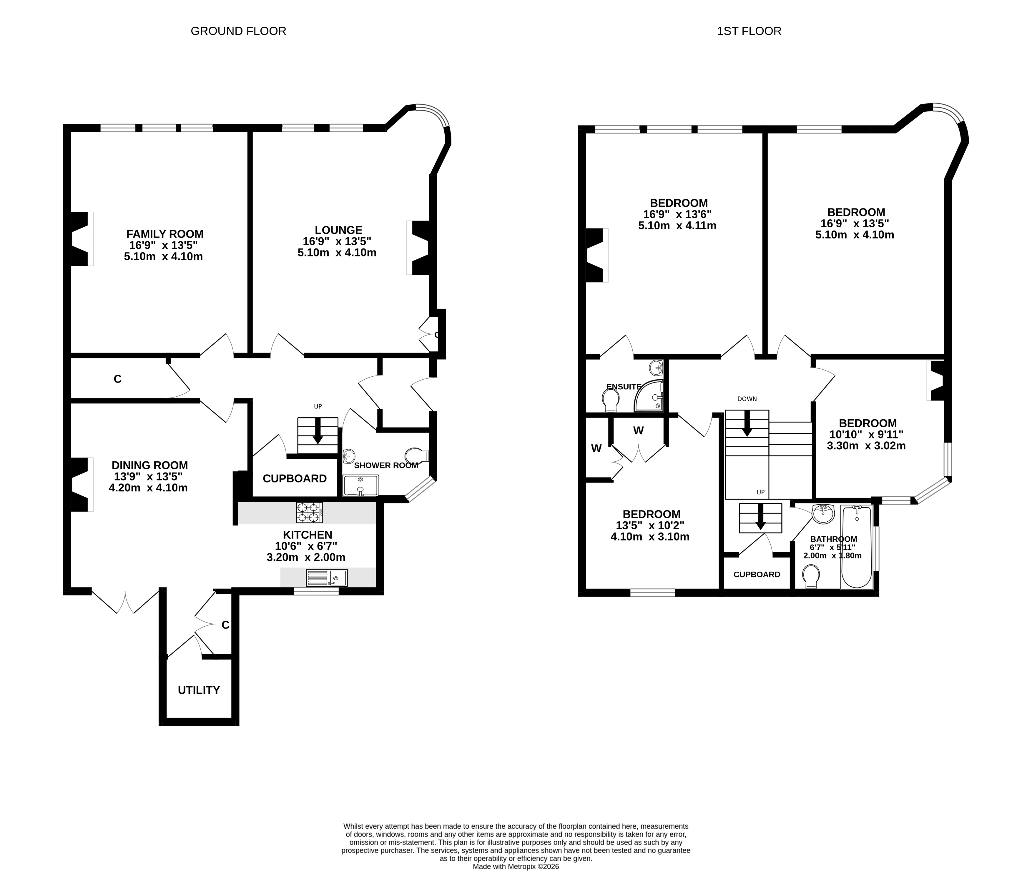
Situated to the north of the city with convenient access to the A90 Kingsway and close to schools, shops and amenities. You will find this delightful, semi-detached house offers versatile accommodation over 2 levels. The property sits on a prominent corner plot and retains many of its’ original period features including ceiling cornice, centre roses, deep skirtings, fireplaces and a working maids bell. It would make an excellent family home and benefits from double glazing and gas central heating. The property is in move-in condition with fresh décor throughout.

The accommodation on the lower floor comprises of an entrance vestibule, reception hall, lounge with a turret and wood burning stove, dining room, family room, kitchen with integrated dishwasher, fridge and freezer, utility room with plumbing for washer and dryer, and a wc/cloakroom. On the upper floor there are four good-sized double bedrooms, including a master with en-suite, original fireplaces and a mid-landing bathroom. Outside to the front, the gardens are laid with lawn and borders. To the rear there is a driveway with space for a garage, and off-street parking on a no-through road. Included in the sale are all fitted floor coverings, curtains, integrated appliances as detailed and garden shed.

This lovely period property located in such a sought-after area can only be fully appreciated by viewing.

Home Report Valuation £310,000
EPC D
Council Tax E

Make a request

CAPTCHA
This question is for testing whether or not you are a human visitor and to prevent automated spam submissions.

Free Valuation

Get a free, no-obligation, market appraisal, valuation and sales strategy from our expert team, using their extensive knowledge of the local market.

Get a free valuation