6 Argyle Street, Dundee, Angus, DD4 7AL

Offers over £320,000

Under Offer
DNE260002_01.jpg
  • 5 bed
  • 1 bath
  • 1 reception
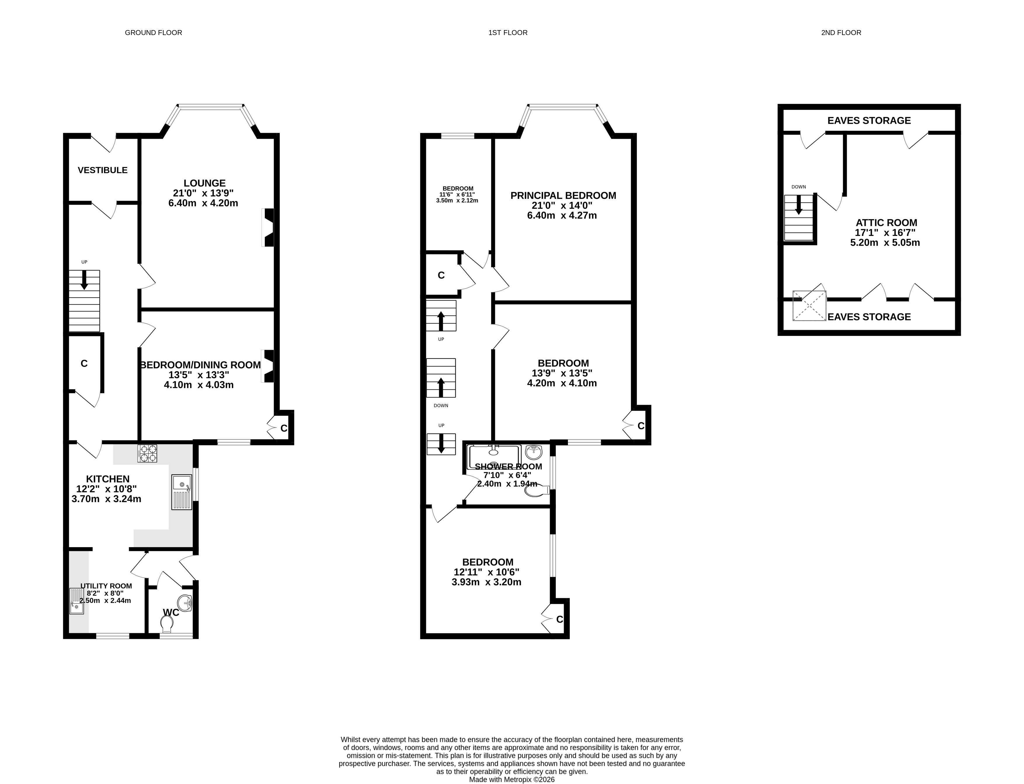
Lindsays are delighted to offer to the market this beautifully presented five bedroom semi detached villa in a popular residential area. Argyle Street is ideally situated for ease of access to a number of local amenities including shops, schools and is close to a regular commuter bus route.

The property has been lovingly upgraded by the current owner and comprises: vestibule, hallway and a bright and spacious lounge/diner with bay window. There is a modern kitchen and utility room which have been recently fitted. The large double bedroom which could be utilised as a dining room depending on the buyers requirements and a useful WC completes the ground floor. On the first floor, the large principal bedroom has a bay window, there are two further good sized double bedrooms and a single bedroom. The modern shower room is also a recent addition. There is also a multifunctional attic room. Benefits include double glazing (excluding WC) gas central heating and a number of beautiful original features. All white goods are available under separate negotiation.

Externally there is a low maintenance garden to the front and a shared drive leading to the garage. The rear garden is a combination of lawn, patio areas, stone chippings and a number of mature plantings.

Early viewing is highly recommended to fully appreciate the home on offer.

Home Report Valuation £320,000
EPC D
Council Tax E

Make a request

CAPTCHA
This question is for testing whether or not you are a human visitor and to prevent automated spam submissions.

Free Valuation

Get a free, no-obligation, market appraisal, valuation and sales strategy from our expert team, using their extensive knowledge of the local market.

Get a free valuation