6 Kemnay Gardens, Dundee, Angus, DD4 7SR

Offers over £110,000

Under Offer
DNE250794_02.jpg
  • 2 bed
  • 1 bath
  • 1 reception
Located in a very popular residential area of Dundee close to all local amenities this lovely two bedroom villa will make an ideal home for a first time buyer.

The property is in good order throughout and practical benefits include double glazing and gas central heating. Included in the sale are all carpets, floorcoverings and blinds where fitted along with the cooker in the kitchen.

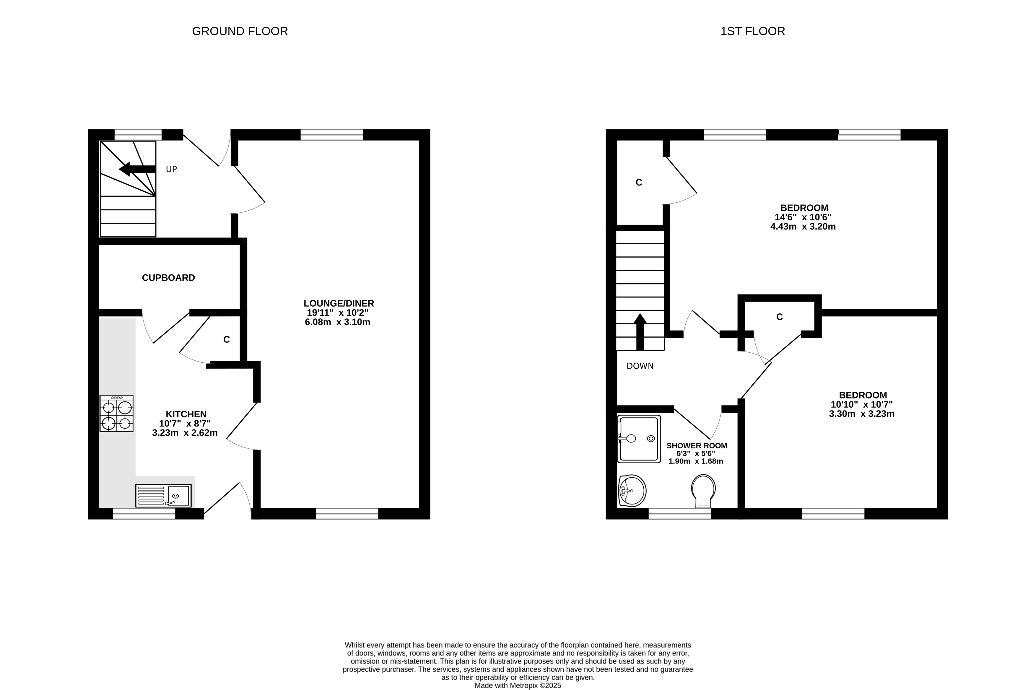
The accommodation on the ground floor comprises a bright lounge/ dining room and kitchen with large cupboard. Moving to the upper floor you will find two good sized double bedrooms and the family shower room. There is a hatch leading to the partially floored attic space.

Externally at the front of the property lies an off street parking space for one vehicle. The main garden is at the rear and is laid with stones, a paved patio area and mature plants and shrubs.

We recommend viewing to fully appreciate the property and gardens.

Home Report Valuation £110,000
EPC C
Council Tax B

Make a request

CAPTCHA
This question is for testing whether or not you are a human visitor and to prevent automated spam submissions.

Free Valuation

Get a free, no-obligation, market appraisal, valuation and sales strategy from our expert team, using their extensive knowledge of the local market.

Get a free valuation