7 Dargie Road, Invergowrie, Dundee, Perth and Kinross, DD2 5AS

Offers over £140,000

Under Offer
DNE250720_02.jpg
  • 2 bed
  • 1 bath
  • 1 reception
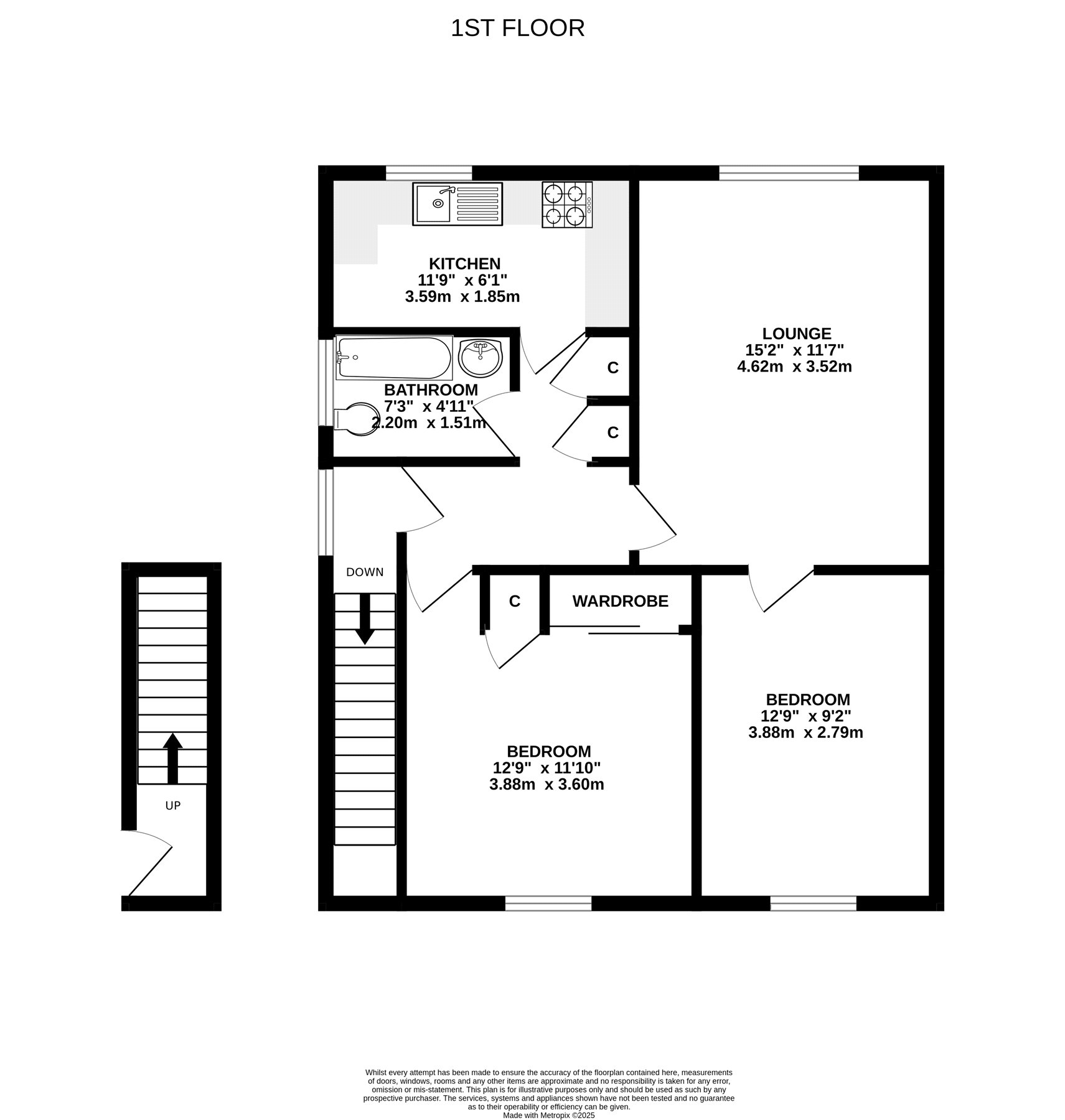
Located in the very popular village of Invergowrie this lovely first floor apartment has a delightful outlook overlooking the park and trees. The property is in move in condition throughout having been upgraded by the current owner and practical benefits include double glazing and gas central heating. Included in the sale are all wool carpets, floorcoverings and blinds where fitted along with the integrated oven and hob in the kitchen and shed in the garden.

The accommodation comprises a bright south facing lounge with room for a dining table and chairs. The compact kitchen has ample floor and wall units and also looks out onto the park. There are two good sized double bedrooms and the family bathroom with shower over the bath. There is a loft with a ladder providing access.

Externally at the front of the property is a chipped driveway providing ample off street parking and leading to a shed with a secluded seating area. At the rear of the building lies a shared drying green and a good sized area of private garden, with second shed and summerhouse, surrounded with a new fence and laid mainly with lawn.

This lovely home will suit a variety of buyers and early viewing is highly recommended.

Home Report Value - £140,000
Energy Rating - C
Council Tax Band - B

Make a request

CAPTCHA
This question is for testing whether or not you are a human visitor and to prevent automated spam submissions.

Free Valuation

Get a free, no-obligation, market appraisal, valuation and sales strategy from our expert team, using their extensive knowledge of the local market.

Get a free valuation