8 Hailes Grove, Colinton, Edinburgh, EH13 0NE

Offers over £310,000

Under Offer
EDB250671_10.jpg
  • 2 bed
  • 1 bath
  • 2 reception
Closing date: Tuesday 2nd December 2025 at 12 noon.
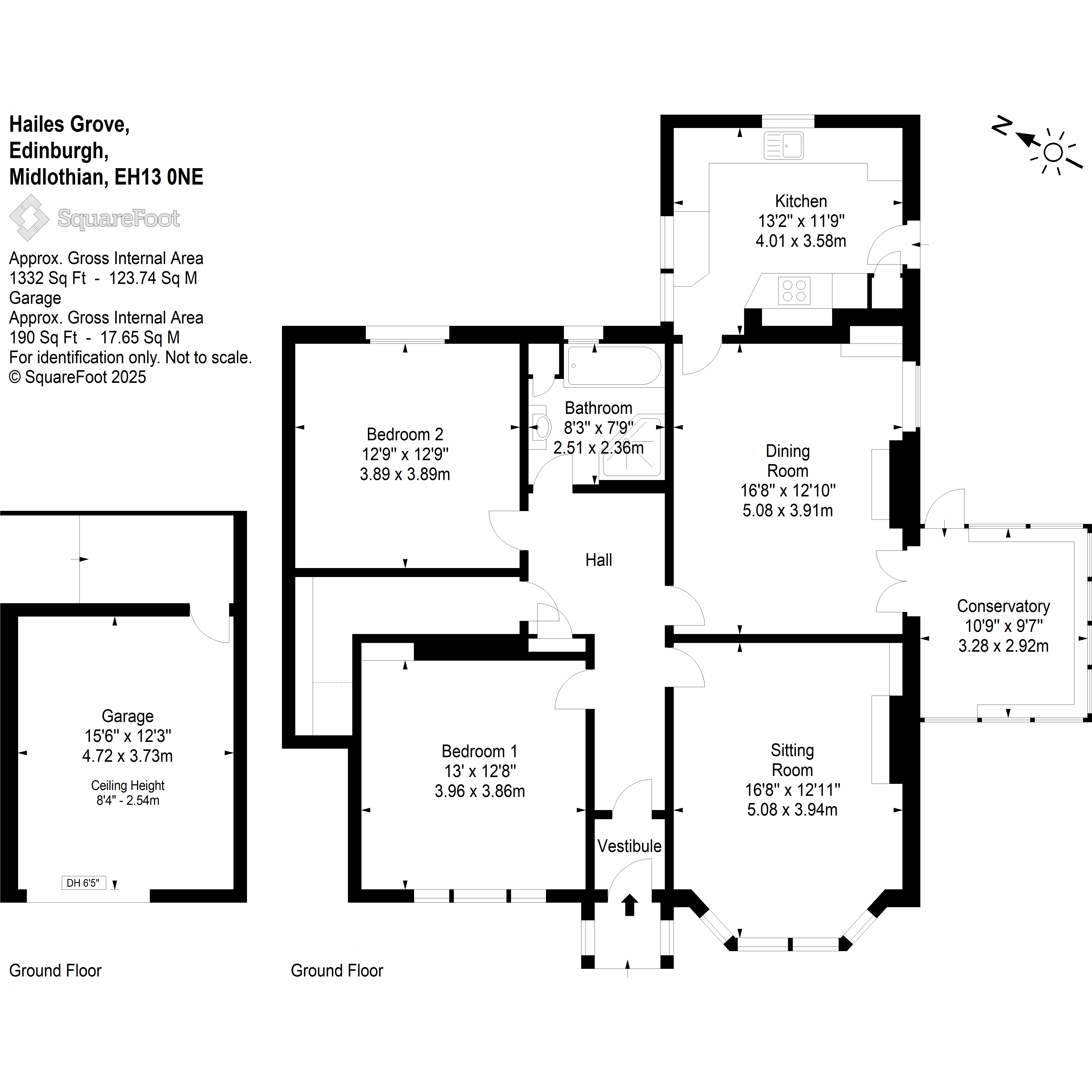
A spacious and quietly positioned lower villa with private gardens and garage. The property is located in the popular Colinton area, to the south-west of the city centre, and enjoys easy access to many local amenities in both Colinton and nearby Juniper Green. Access to the centre of Edinburgh is straightforward by car or the regular bus services. The property is accessed via a pathway through the private front garden. A porch gives access to a vestibule leading to a spacious hallway. To the front is the bay-windowed sitting room as well as one of the two spacious double bedrooms. Off the hallway is a large store cupboard. To the rear is the second of the double bedrooms, the family bathroom and a well-proportioned dining room. Off the dining room is the kitchen to the rear and the conservatory to the side of the property. The well-equipped kitchen has a double electric oven, gas hob, fridge/freezer, dishwasher and washing machine. From the kitchen there is direct access to the rear enclosed garden. The property also benefits from gas central heating, double glazing and a detached garage.

Viewing - contact Lindsays 0131 229 4040

EPC D
Council Tax Band E

Make a request

CAPTCHA
This question is for testing whether or not you are a human visitor and to prevent automated spam submissions.

Free Valuation

Get a free, no-obligation, market appraisal, valuation and sales strategy from our expert team, using their extensive knowledge of the local market.

Get a free valuation