99 Burghmuir Road, Perth, PH1 1HT

Offers over £199,000

Sold
PER230068_41.jpg
  • 3 bed
  • 2 bath
  • 1 reception
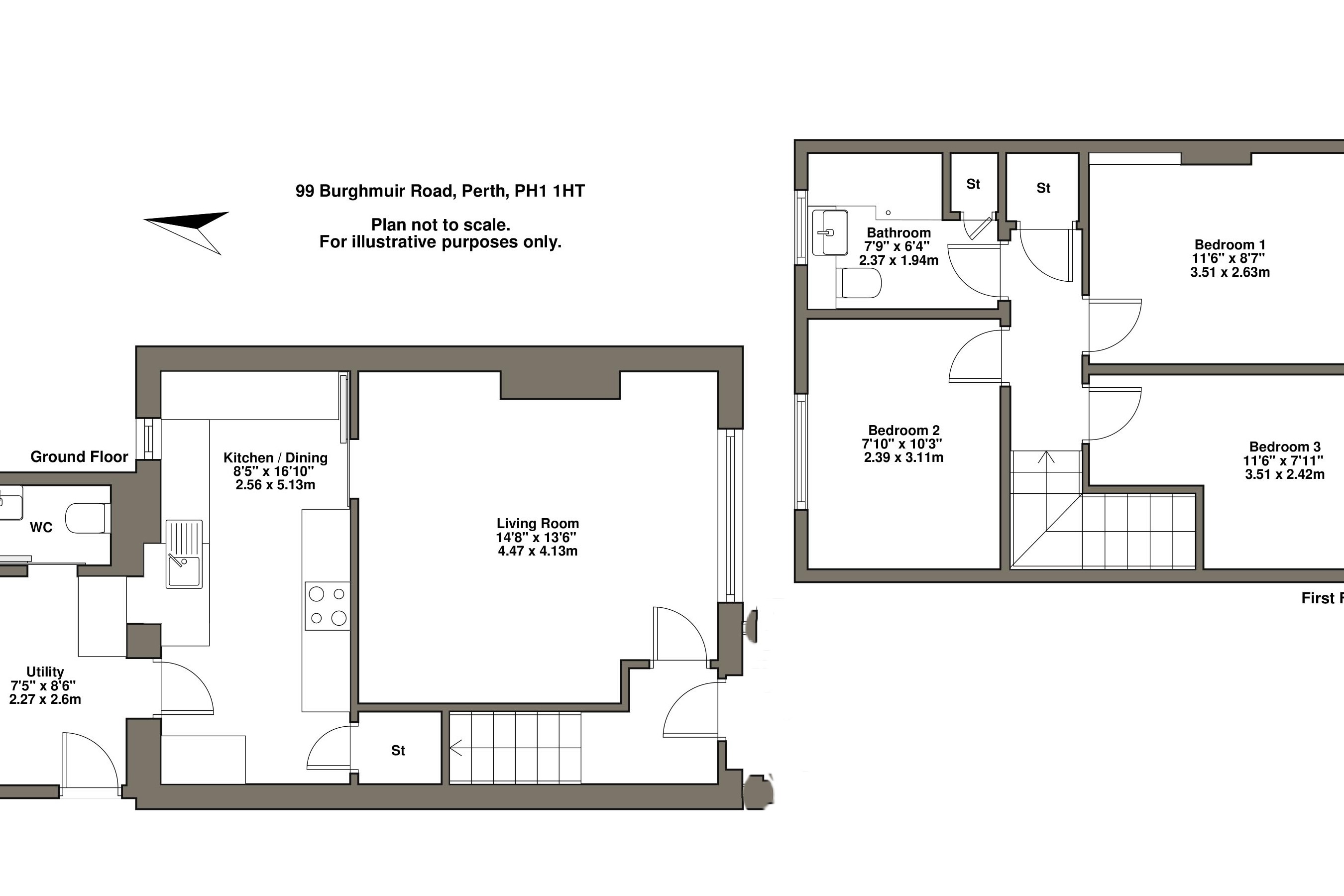
Lindsays are delighted to offer to the market this spacious three bedroom semi-detached villa with large garden and set within a popular residential area. Burghmuir Road is ideally situated with ease of access such as shops and schools and regular public transport. The property benefits from electric heating and double glazing. Included in the sale are all floor covers and light fittings.

This family home is split over two floors and the ground floor comprises; Hallway, bright and spacious lounge, modern fitted kitchen with ample space for dining, counter and cupboard space and leads to a useful utility room with WC and access to the rear garden. Upstairs you have the spacious master bedroom along with two further bedrooms and a family bathroom with shower over bath and chrome towel rail.

Externally to the front of the property is the driveway providing off street parking for multiple cars and a front garden area the main garden area is to the rear of the property and this large garden is mainly laid in lawn with chipstone and fruit tree.

Viewing by appointment through Lindsays on 01738 630222 or perthproperty@lindsays.co.uk

Make a request

CAPTCHA
This question is for testing whether or not you are a human visitor and to prevent automated spam submissions.

Free Valuation

Get a free, no-obligation, market appraisal, valuation and sales strategy from our expert team, using their extensive knowledge of the local market.

Get a free valuation