12 Kerrington Crescent, Broughty Ferry, Dundee, DD5 2TN

Offers over £315,000

Under Offer
DNE250537_09.jpg
  • 4 bed
  • 1 bath
  • 2 reception
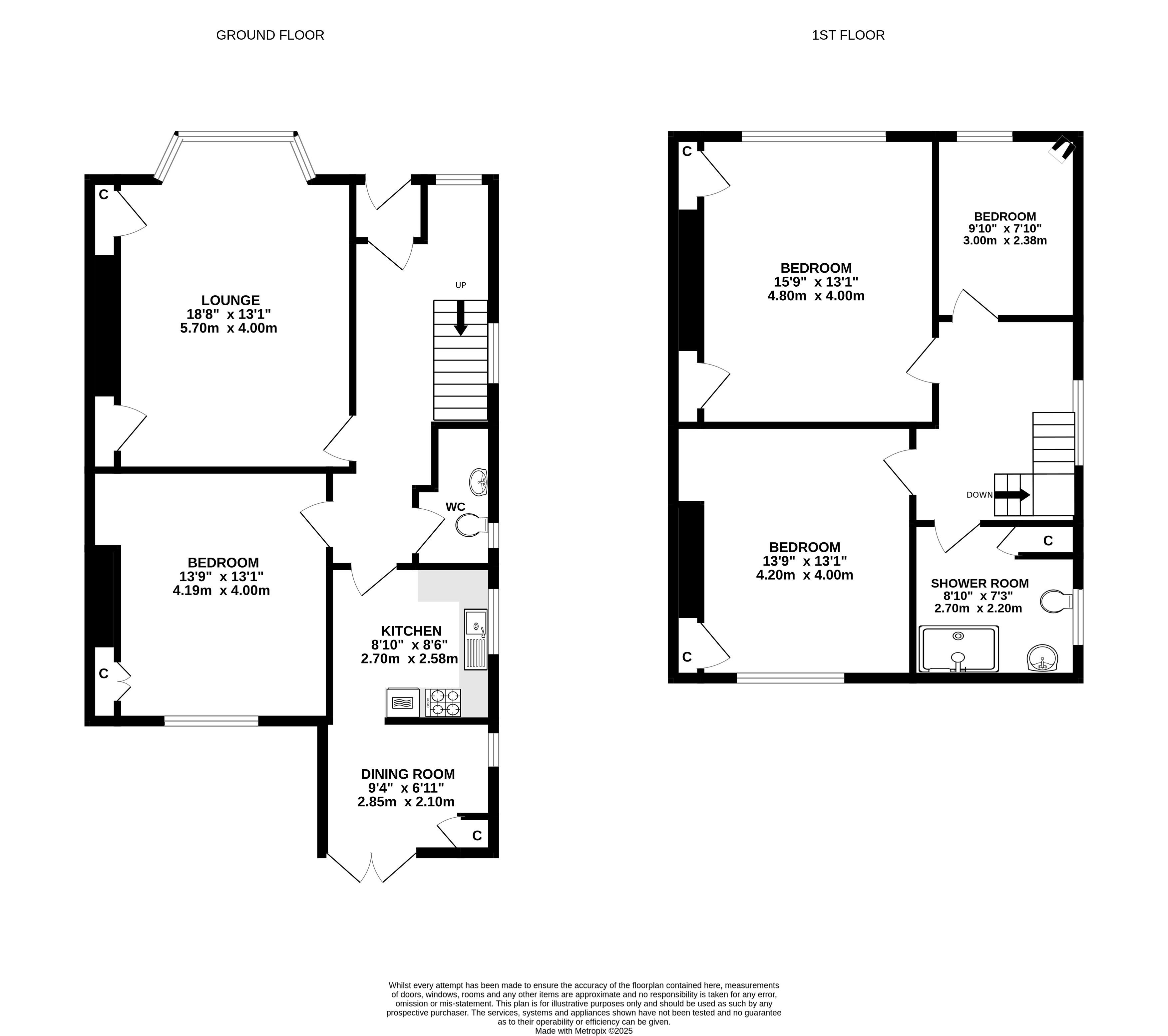
Lindsays are delighted to bring to market this attractive and flexible four-bedroom family home, set within the ever-popular Kerrington Crescent area of Broughty Ferry. Ideally positioned for convenient access to local amenities, the property enjoys an elevated setting that provides beautiful views towards the River Tay.

The accommodation is bright, welcoming and well-presented throughout. A vestibule leads into the hallway, giving access to the spacious lounge, which features tasteful décor, a charming bay window that captures the views, and a stylish stove fire. The modern fitted kitchen sits to the rear and flows naturally into the adjoining dining room, a versatile space with patio doors opening out to the garden, ideal for family living, entertaining, or use as a cosy snug. The ground floor also benefits from a contemporary WC and a generous double bedroom.

Upstairs, there are two further impressive double bedrooms, both with fitted storage, one of which enjoys stunning panoramic views over the Tay. A fourth bedroom is currently arranged as a home office, offering the perfect quiet workspace. The modern shower room is finished to a high standard and includes a walk-in shower.

Externally, the property offers low-maintenance private gardens to the front, with the main south west facing garden located to the rear, fully enclosed, laid to lawn, and well-kept. A large shed and greenhouse are included in the sale.
HOME REPORT-£315,000
EPC -D
COUNCIL TAX BAND- E

Make a request

CAPTCHA
This question is for testing whether or not you are a human visitor and to prevent automated spam submissions.

Free Valuation

Get a free, no-obligation, market appraisal, valuation and sales strategy from our expert team, using their extensive knowledge of the local market.

Get a free valuation