15B Arklay Terrace, Dundee, DD3 7PF
Offers over £85,000
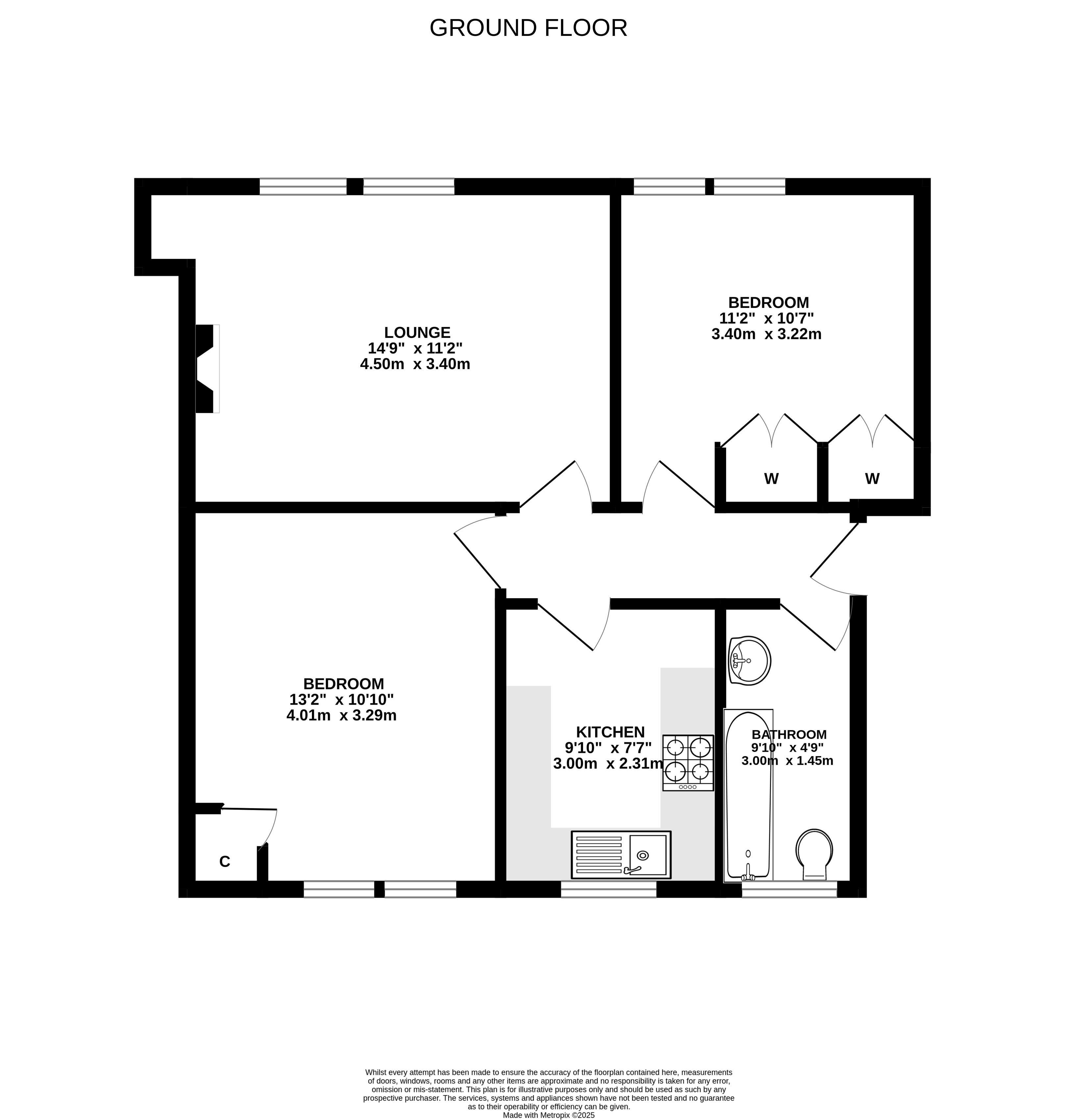
The property comprises a welcoming hallway leading to a generous lounge featuring a fireplace and ample space for dining. The fully fitted kitchen provides an excellent range of wall and base units, offering plenty of cupboard and counter space. There are two very spacious double bedrooms, both benefiting from built-in storage, and completing the internal of the property is the bathroom with a shower over the bath.
Externally, the property enjoys a small, easily maintained private garden to the front and access to a well-kept communal drying area to the rear. On-street parking is available directly outside the property.
Recently decorated throughout, the apartment features new carpets and flooring and benefits from gas central heating and double glazing. All floor coverings, light fittings, and blinds where fitted are included in the sale.
Having been a successful buy-to-let investment for many years, this property will appeal to a wide range of purchasers, including first-time buyers, investors, and those looking to downsize. Early viewing is highly recommended
HOME REPORT £85,000
EPC BAND C
COUNCIL TAX BAND A
 
           
                         
                                         
                                         
                                         
                                         
                                         
                                         
                                         
                                         
                                         
                                         
 
 
 
 
 
 
 
 
 
 
