439 Brook Street, Broughty Ferry, Dundee, Angus, DD5 2DX

Offers over £130,000

Under Offer
DNE250540_02.jpg
  • 1 bed
  • 1 bath
  • 1 reception
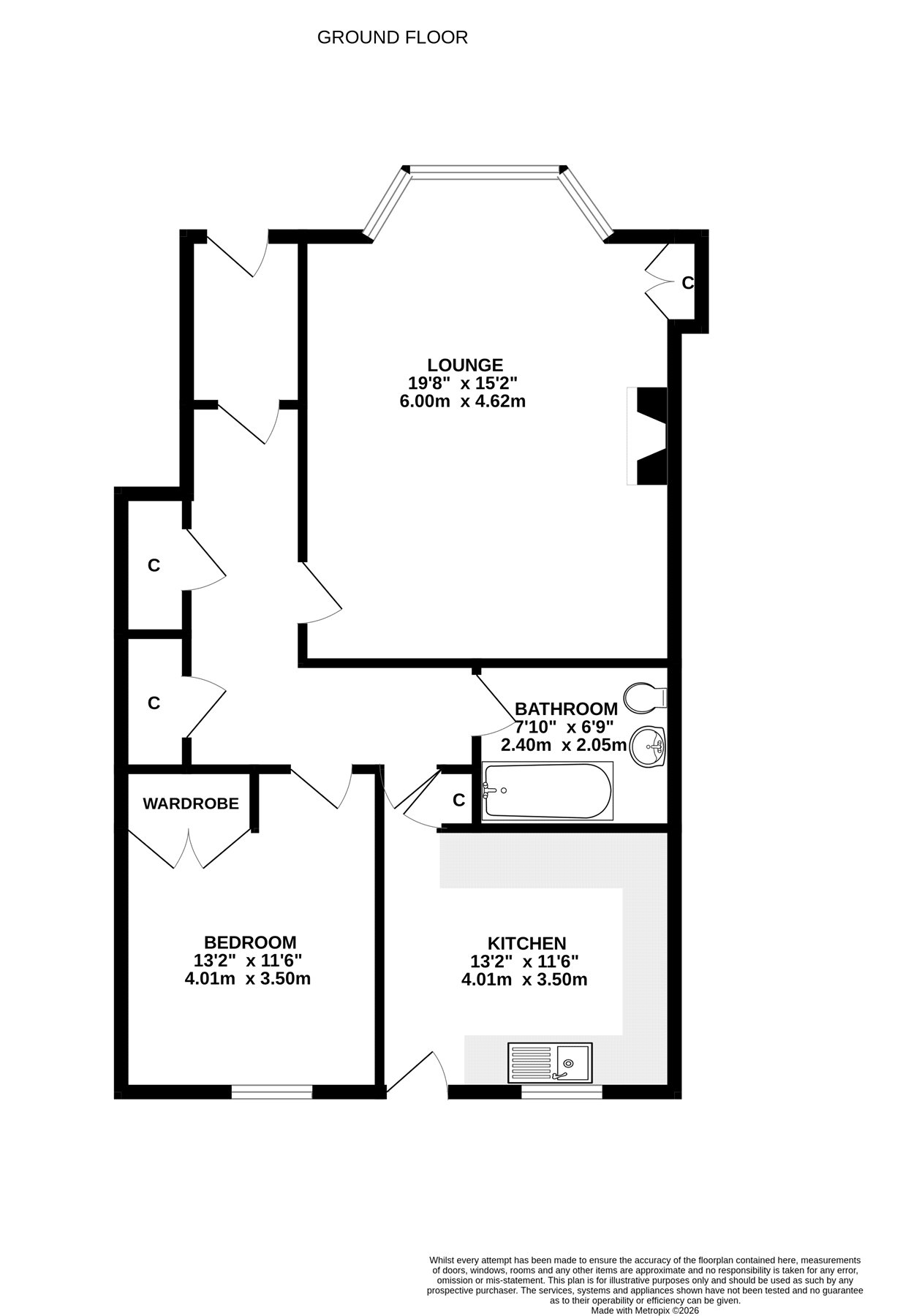
This well-proportioned ground floor flat is located in a very desirable area of Broughty Ferry within walking distance of the shops, bars and restaurants of central Broughty Ferry. No 439 does require upgrading, however this is an excellent opportunity to acquire a sought-after style of property.

The vestibule opens into a welcoming hallway which provides access to all of the accommodation and has two large built-in cupboards. The lounge is a lovely room with original ceiling cornice and centre rose, along with a shelved recessed display with storage cupboard below and a fireplace with timber mantle. The kitchen is fitted with a range of cupboards, integrated extractor hood and space for appliances. A door opens out to the rear from here. The bedroom is a good size with fitted wardrobes, and the bathroom is fitted with an easy access bath. Practical benefits include double glazing and gas central heating and included in the sale are the fitted floorcoverings and integrated cooker hood. Outside to the rear is an area of private garden laid with chipped stone and borders, whilst the front garden is also privately owned. There is a shared brick outhouse to the rear. Benefits include double glazing and gas heating.

This potentially lovely home in such a superb location can only be fully appreciated by early viewing to avoid disappointment.

Home Report Value - £130,000
Energy Rating - D
Council Tax Band - B

Make a request

CAPTCHA
This question is for testing whether or not you are a human visitor and to prevent automated spam submissions.

Free Valuation

Get a free, no-obligation, market appraisal, valuation and sales strategy from our expert team, using their extensive knowledge of the local market.

Get a free valuation