2 Grayfaulds Road, Dundee, Angus, DD2 5FW

Offers over £255,000

Under Offer
DNE260031_02.jpg
  • 3 bed
  • 2 bath
  • 1 reception
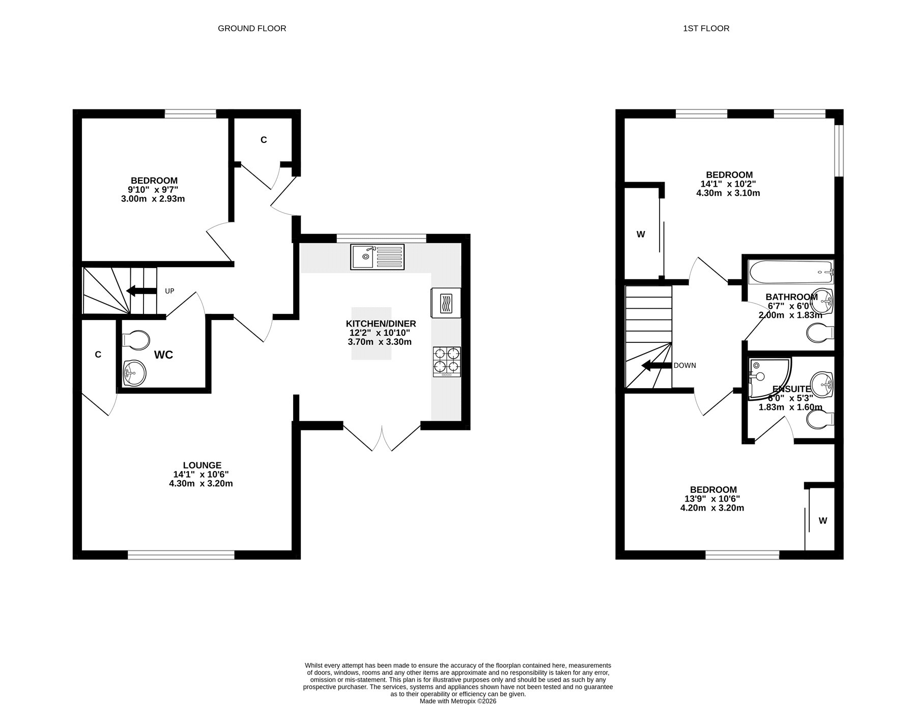
Lindsays are delighted to welcome to the market this superb link-detached contemporary villa which is located on the ever popular “Springfield Dykes of Gray” estate which is located within a few minutes of Ninewells Hospital on the western edge of Dundee. This lovely home is in immaculate condition throughout and practical benefits include double glazing and an air source heat pump. Included in the sale are all carpets, floorcoverings and blinds where fitted along with the integrated appliances in the kitchen which include an oven, hob, dishwasher, fridge, freezer, washing machine and microwave.Entering on the ground floor you will find a bright and welcoming open plan lounge/dining/kitchen featuring a media wall, ample floor and wall units, useful breakfast island with extra storage and doors leading to the rear garden. Bedroom three is located downstairs along with a generous cloakroom/wc. Moving to the upper floor the principal bedroom boasts an en suite shower room and double fitted wardrobes. The second bedroom is flooded with natural light from dual aspect windows and also benefits from fitted wardrobes. The family bathroom with shower over the bath completes the accommodation.Externally at the front of the property lies a driveway providing off street parking for two vehicles. The main garden lies at the rear and is laid mainly with lawn a paved patio and rear decking which are ideal for summer family relaxing.
HR Value - £260,000
Energy Rating - C
Council Tax - D

Make a request

CAPTCHA
This question is for testing whether or not you are a human visitor and to prevent automated spam submissions.

Free Valuation

Get a free, no-obligation, market appraisal, valuation and sales strategy from our expert team, using their extensive knowledge of the local market.

Get a free valuation