3 Wortley Place, Dundee, Angus, DD4 7HD

Offers over £255,000

Under Offer
DNE250179_12.jpg
  • 3 bed
  • 1 bath
  • 1 reception
CLOSING DATE FIXED: FRIDAY 3 APRIL 2026 AT 11AM

Ideally located in a quiet residential street this beautiful mid terraced stone-built villa has been tastefully upgraded and altered by the current owners and can only be fully appreciated by viewing. This lovely home is in move in condition throughout with practical benefits including double glazing and gas central heating.
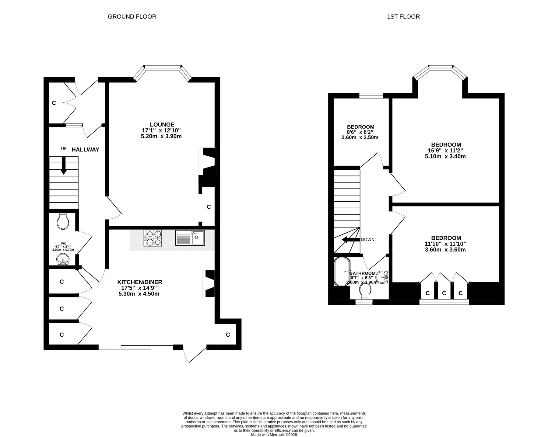
The property is entered through the period style, tiled floor vestibule and hallway into the elegant lounge which boasts a bay window, log burner, ornate coving and original flooring. At the rear of the building lies the impressive open plan kitchen/diner which is flooded with natural light through the bi-fold doors which lead to the rear decking area. This room also has original flooring and a cosy log burner making it the heart of the home. A practical cloakroom/WC is nestled under the stairwell. Moving to the upper floor you will find two good sized double bedrooms, a single room currently used as a home office and the fabulous bathroom with freestanding slipper bath.
Externally at the front of the property lies an easily maintained garden laid with artificial lawn and pretty flower borders. The main garden lies at the rear and benefits from sun throughout the day it is also laid with artificial lawn and offers two attractive decking areas. There is an external tore and a garden shed which will also be included in the sale.

Home Report Value - £255,000
Energy Rating - D
Council Tax Band - D

Make a request

CAPTCHA
This question is for testing whether or not you are a human visitor and to prevent automated spam submissions.

Free Valuation

Get a free, no-obligation, market appraisal, valuation and sales strategy from our expert team, using their extensive knowledge of the local market.

Get a free valuation