4, Parkview 309 Blackness Road, Dundee, Angus, DD2 1SH

Offers over £220,000

Under Offer
DNE250786_02.jpg
  • 2 bed
  • 2 bath
  • 1 reception
CLOSING DATE FIXED: TUESDAY 17 FEBRUARY 2026 AT 11AM
An excellent opportunity to purchase this lovely first floor apartment which is located within the highly sought after Parkview Development. The imposing building is an impressive and award winning “B” listed, converted school and ideally placed for access to Ninewells Hospital and Dundee University.

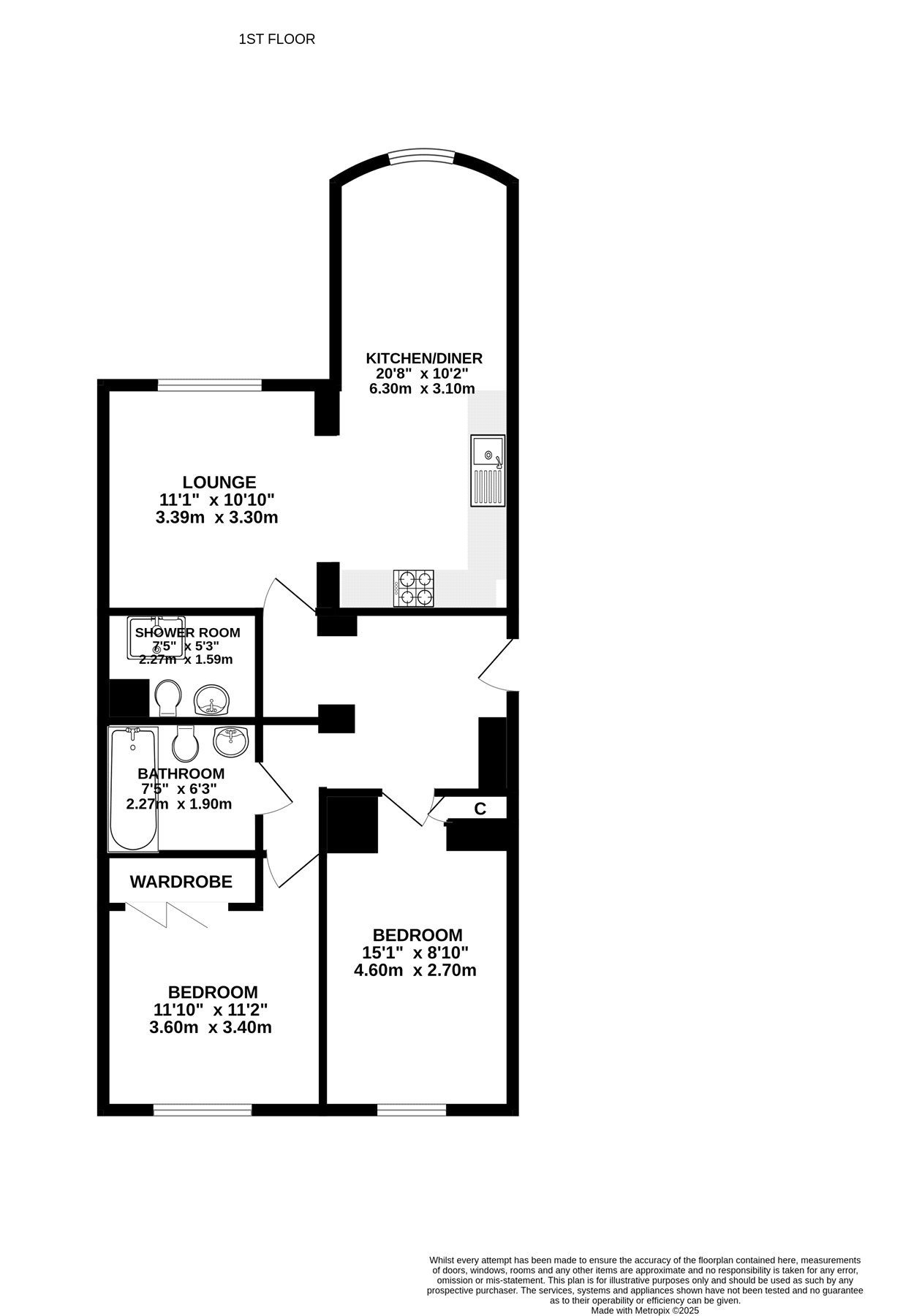
Apartment No. 4 located on the first floor of the main building offers contemporary accommodation which comprises a bright south facing lounge/dining/kitchen with lovely corner feature ideal for a table and chairs and superb views over the River Tay, principal bedroom with fitted wardrobes, further double bedroom, family bathroom with shower over the bath and also a separate shower room.
The list of attributes include gas central heating, double glazing and secure entry system. Included in the sale are all carpets, floorcoverings and blinds where fitted along with the integral kitchen appliances.

Externally the property boasts beautifully maintained communal gardens and an allocated parking space outside the main door. There is a mutual bin store which also has room for storing bikes. Newton Property Management are the factors for the development and the monthly fee is approximately £105.

This beautiful apartment must be viewed to be fully appreciated and will suit a wide variety of buyers.

Home Report Value - £220,000
Energy Rating - B
Council Tax Band - C

Make a request

CAPTCHA
This question is for testing whether or not you are a human visitor and to prevent automated spam submissions.

Free Valuation

Get a free, no-obligation, market appraisal, valuation and sales strategy from our expert team, using their extensive knowledge of the local market.

Get a free valuation