41 St. Martin Drive, Dundee, Angus, DD3 0RP

Offers over £260,000

Under Offer
DNE250858_02.jpg
  • 4 bed
  • 2 bath
  • 1 reception
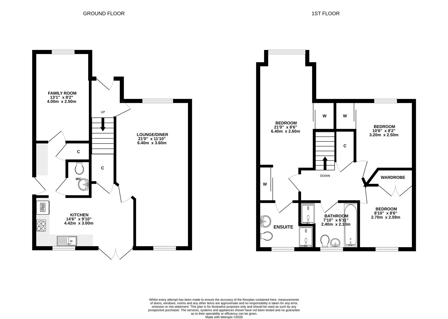
An excellent opportunity to purchase this detached villa located in a very popular area to the north of Dundee City, close to schools, shops and amenities and the A90 dual carriageway which provides excellent commuting links both north and south. The accommodation was extended by converting the former garage into a playroom, and practical benefits include double glazing and gas central heating.

The accommodation comprises a hallway; lounge/dining room with patio doors to the garden; kitchen/breakfast room with integrated hob, oven, microwave, extractor hood, dishwasher, fridge and freezer; utility room with cupboard with plumbing and space for washing machine and tumble dryer; wc/cloakroom and playroom (which could be used as a 4th bedroom if required) on the lower floor. Upstairs there are three well-proportioned bedrooms, all with fitted wardrobes and one having the benefit of an en-suite shower room, and the family bathroom. Outside to the rear the south facing fully enclosed rear garden has lawn and paved patio perfect for outside entertaining, and a large garden shed. The front garden is laid with lawn and paved driveway providing off-street parking. Included in the sale are all fitted floorcoverings and blinds where fitted along with the integrated kitchen appliances as detailed and garden shed.

Home Report Value - £260,000
Energy Rating - C
Council Tax Band - E

Make a request

CAPTCHA
This question is for testing whether or not you are a human visitor and to prevent automated spam submissions.

Free Valuation

Get a free, no-obligation, market appraisal, valuation and sales strategy from our expert team, using their extensive knowledge of the local market.

Get a free valuation