56 Erskine Road, Broxburn, West Lothian, EH52 6XL

Offers over £245,000

Under Offer
EDB250623_28.jpg
  • 4 bed
  • 2 bath
  • 2 reception
CLOSING DATE SET FRIDAY 14TH NOVEMBER AT 12NOON
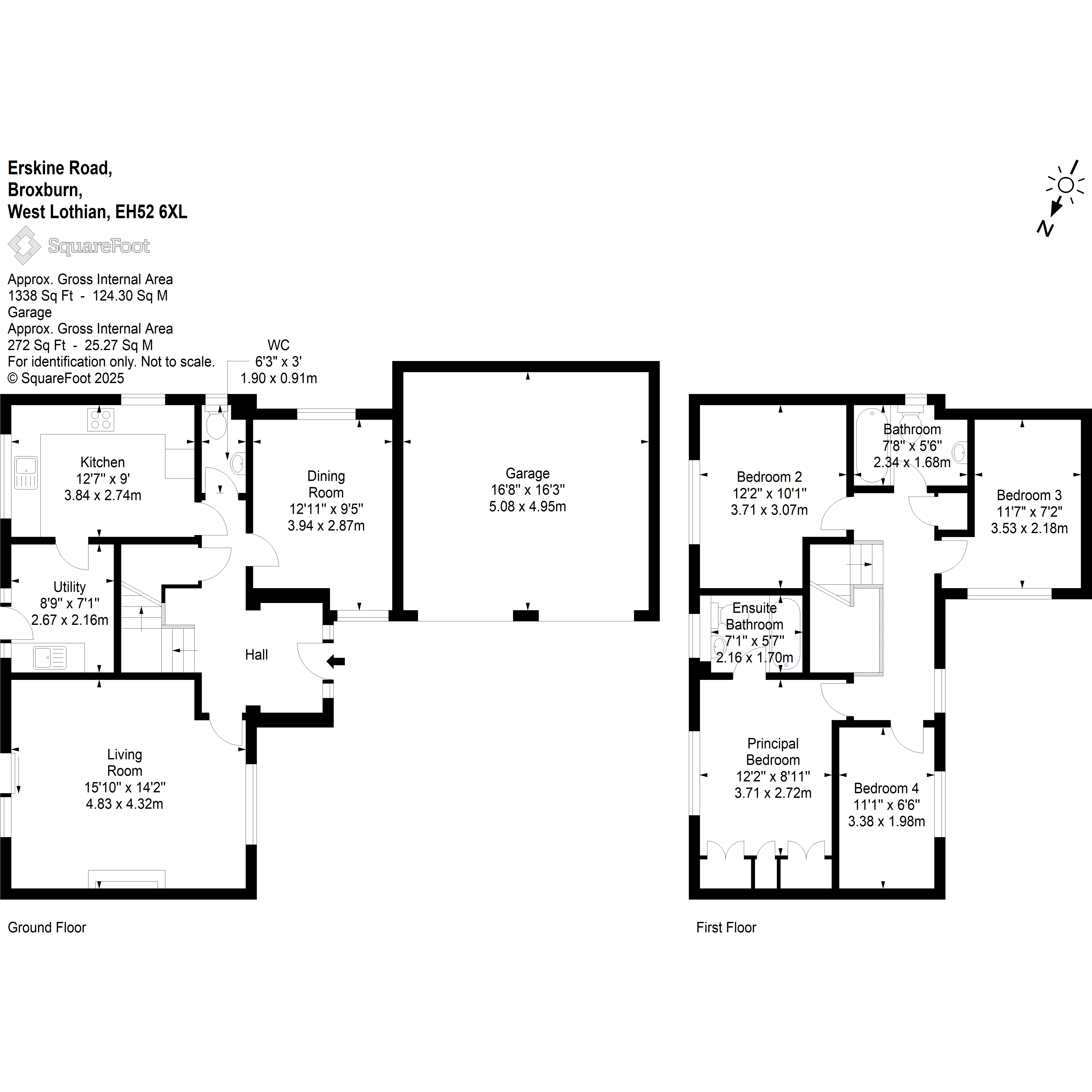
A quietly positioned, spacious and well-presented four bedroom detached house. The property benefits from gas central heating, double glazing, private gardens, off-street parking and a double garage. The internal layout offers comfortable and flexible family NOO45/1accommodation over two floors. The ground floor layout has hallway, spacious sitting room, kitchen (with electric oven, grill and gas hob), utility room (with washing machine), a dining room and a useful WC. Upstairs are four bedrooms and the family bathroom. The principal bedroom has an en-suite bathroom. The property has recently had new carpets laid throughout and the house is in good decorative order.

Viewing Sunday 2-4pm (no appointment necessary) or contact Lindsays 0131 229 4040

EPC rate C
Council Tax Band F

Make a request

CAPTCHA
This question is for testing whether or not you are a human visitor and to prevent automated spam submissions.

Free Valuation

Get a free, no-obligation, market appraisal, valuation and sales strategy from our expert team, using their extensive knowledge of the local market.

Get a free valuation