12 Strips of Craigie Place, Dundee, Angus, DD4 7QB

Offers over £165,000

Under Offer
DNE260184_01.jpg
  • 2 bed
  • 1 bath
  • 1 reception
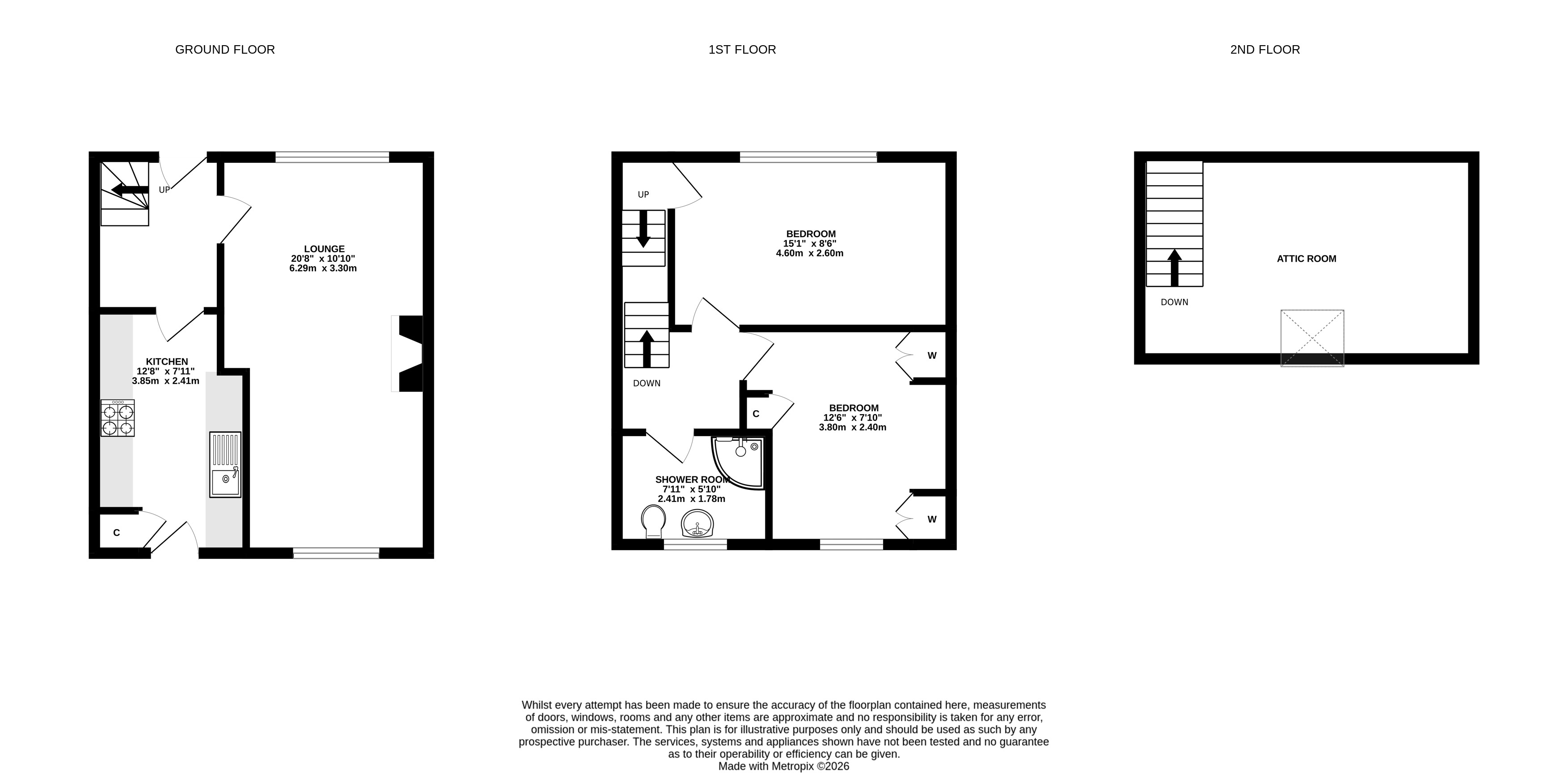
Located in the corner of a cul-de-sac in a very popular area of Dundee lies this lovely two bedroom semi-detached villa which also boasts a floored attic room and a garden room. This lovely home is in move in condition throughout and practical benefits include double glazing, gas central heating, hive system, security alarm and CCTV. Included in the sale are all carpets, floorcoverings, blinds/shutters where fitted along with the integrated oven, hob, fridge and freezer in the kitchen. Other items of furniture may be included by separate negotiation.
The accommodation on the ground floor comprises a comfortable lounge/dining room with gas fireplace and compact kitchen. On the upper floor there are two good sized double bedrooms and the family shower room. A stairway in a cupboard leads to the attic room which is floored and carpeted and has a velux window making excellent extra space.
Externally at the front of the property lies a tarmac driveway for off street parking. The main garden lies at the rear and being south facing benefits from sun throughout the day. It is fully enclosed with a paved patio and faux lawn. At the bottom of the garden lies a summerhouse which benefits from double glazing, electric heating and wi-fi. It would be ideal for working from home. The garden shed will remain with the property.
This is an excellent home for a variety of buyers.

HR Value- £165,000
EPC- C
Council Tax Band- B

Make a request

CAPTCHA
This question is for testing whether or not you are a human visitor and to prevent automated spam submissions.

Free Valuation

Get a free, no-obligation, market appraisal, valuation and sales strategy from our expert team, using their extensive knowledge of the local market.

Get a free valuation