16 Bishoploch Road, Arbroath, Angus, DD11 2DH

Offers over £220,000

Under Offer
DNE260024_02.jpg
  • 3 bed
  • 1 bath
  • 2 reception
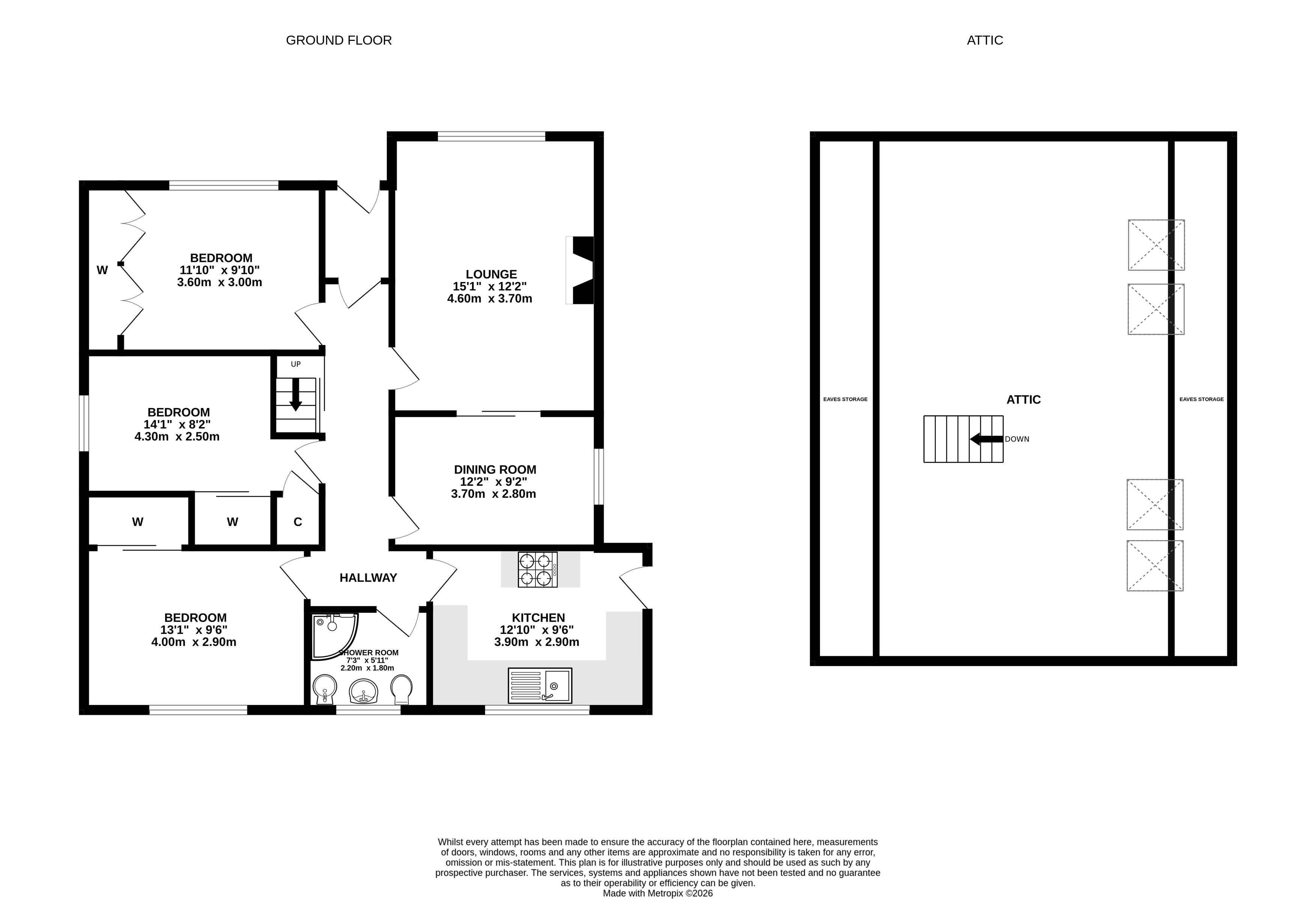
This detached bungalow requiring upgrading offers an excellent opportunity for those seeking a property with great potential. Located in a well-regarded residential area to the east of the town, convenient for schools, local shops,supermarketsand retail parks and with easy access to other local towns via the A92.

The accommodation comprises; entrance hall, lounge with fireplace, dining room, kitchen, three good-sized bedrooms, all with built-in wardrobes, and the shower room. A staircase from a cupboard in the hall leads to the attic space which could easily be converted into additional accommodation if required. The front garden is laid with chipped stone, borders and two driveways providing off-street parking, one of which leads to the garage which has an electric door. The rear garden is also laid with chipped stone and mature shrubs and has two sheds and a summerhouse. The property benefits from double glazing and gas central heating. Included in the sale are the fitted floor coverings, window blinds, dishwasher and washing machine (no warranties provided).

The property is likely to appeal to a range ofbuyers,and we do recommend early viewing to appreciate the potential of this lovely property.

HOME REPORT £220,000
EPC BAND D
CT BAND E

Make a request

CAPTCHA
This question is for testing whether or not you are a human visitor and to prevent automated spam submissions.

Free Valuation

Get a free, no-obligation, market appraisal, valuation and sales strategy from our expert team, using their extensive knowledge of the local market.

Get a free valuation