93 Linton Road, Dundee, Angus, DD2 2SX

Offers over £185,000

Under Offer
DNE250643_02.jpg
  • 4 bed
  • 2 bath
  • 1 reception
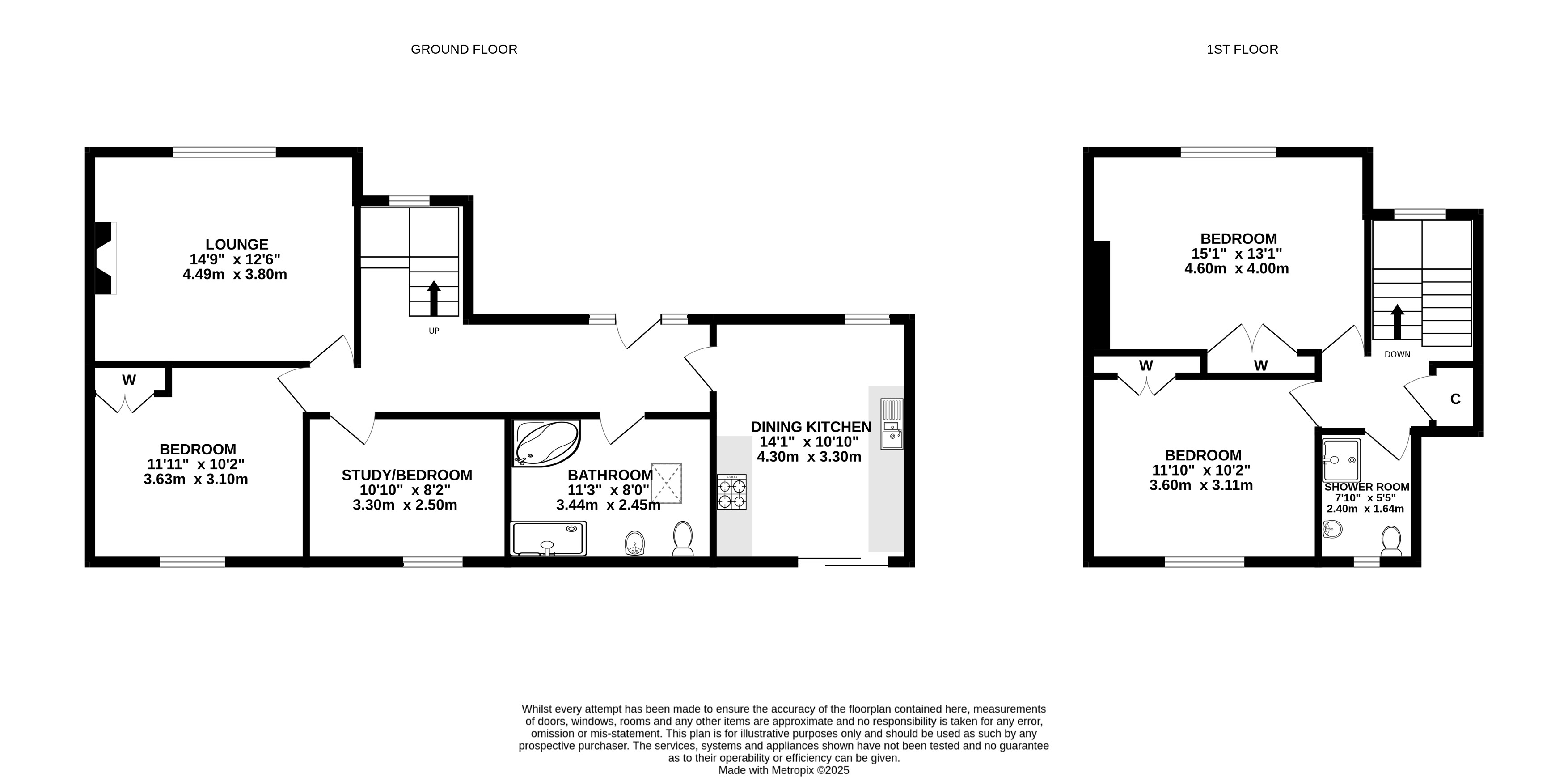
Lindsays are delighted to offer to the market this deceptively spacious four bedroom semi detached villa in a popular residential area. Linton Road is ideally situated for ease of access to a number of amenities including shops, schools and a regular commuter bus route.

The accommodation comprises on the ground floor: reception hallway, bright and spacious lounge with feature fireplace and breakfasting kitchen with patio doors leading to the rear garden. There are two double bedrooms and large family bathroom with separate shower cubicle. Upstairs there are two further bedrooms both with built in wardrobes and shower room. Benefits include double glazing, gas central heating and attic space.

Externally there is a small garden to the front with a drive leading to a carport which offers off street parking for multiple vehicles. The back garden is laid with a combination of lawn, decking and patio area. The two timber sheds will be included in the sale.

Early viewing is highly recommended to full appreciate the property on offer.

EPC Rating - D
Home Report Value - £185,000
Council Tax Band - B

Make a request

CAPTCHA
This question is for testing whether or not you are a human visitor and to prevent automated spam submissions.

Free Valuation

Get a free, no-obligation, market appraisal, valuation and sales strategy from our expert team, using their extensive knowledge of the local market.

Get a free valuation