315 Charleston Drive, Dundee, Angus, DD2 4HN

Offers over £75,000

Under Offer
DNE250685_01.jpg
  • 2 bed
  • 1 bath
  • 1 reception
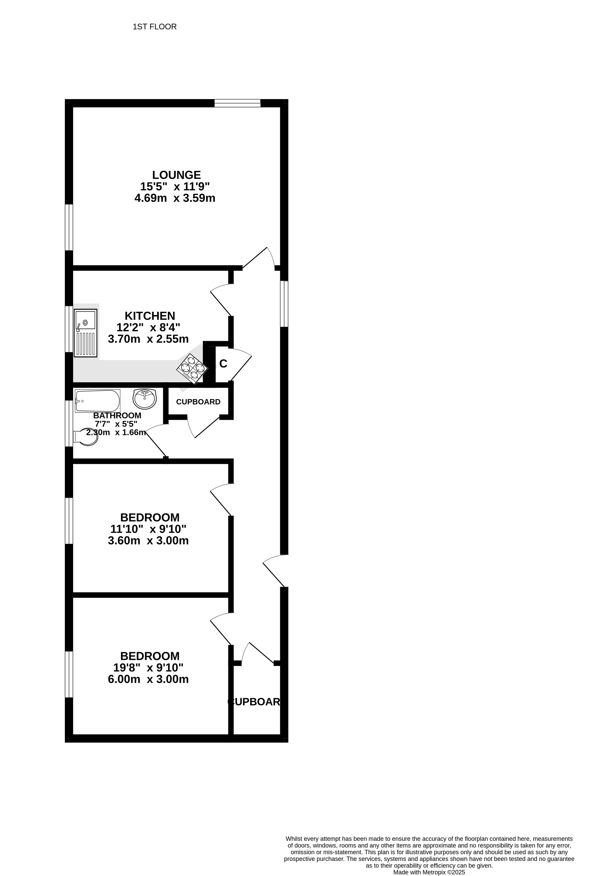
An excellent opportunity to purchase this spacious 2-bedroomed 2nd floor flat located within a popular residential area of Dundee. Charleston Drive is ideally situated with easy access for all local amenities such as schools, local shops and within easy reach of Ninewells Hospital and the city centre. The property offers good sized accommodation with excellent storage and practical benefits including electric heating and double glazing.

The accommodation comprises an entrance hall with three built-in cupboards, a good-sized lounge with windows to the south and east, kitchen with integrated hob, oven and extractor hood and space for a washing machine and fridge-freezer, two bedrooms and bathroom with instant shower. Outside there is a shared drying green. Included in the sale are all floor coverings along with integrated kitchen appliances as detailed.

This property’s’ close proximity to Ninewells Hospital is sure to make it popular with 1st time buyers and investors, and early viewing is highly recommended to appreciate this lovely home.

HR Value- £75,000
EPC- C
Council Tax Band- A

Make a request

CAPTCHA
This question is for testing whether or not you are a human visitor and to prevent automated spam submissions.

Free Valuation

Get a free, no-obligation, market appraisal, valuation and sales strategy from our expert team, using their extensive knowledge of the local market.

Get a free valuation